九総信第2ビル 2F
24時間利用可!博多駅エリアの大型オフィス。
2025年8月末に大規模改修工事が完了し、新築同様の快適なオフィス環境が実現しました。
博多駅徒歩9分の利便性はそのままに、真新しい空間で事業をスタートすることができます。
カードキーによるオートロックで24時間いつでも出入りが可能なので多様な働き方に対応しビジネスの自由度を高めます。
福岡県福岡市博多区博多駅東1丁目10番24
- 賃料 :
- ¥897,600
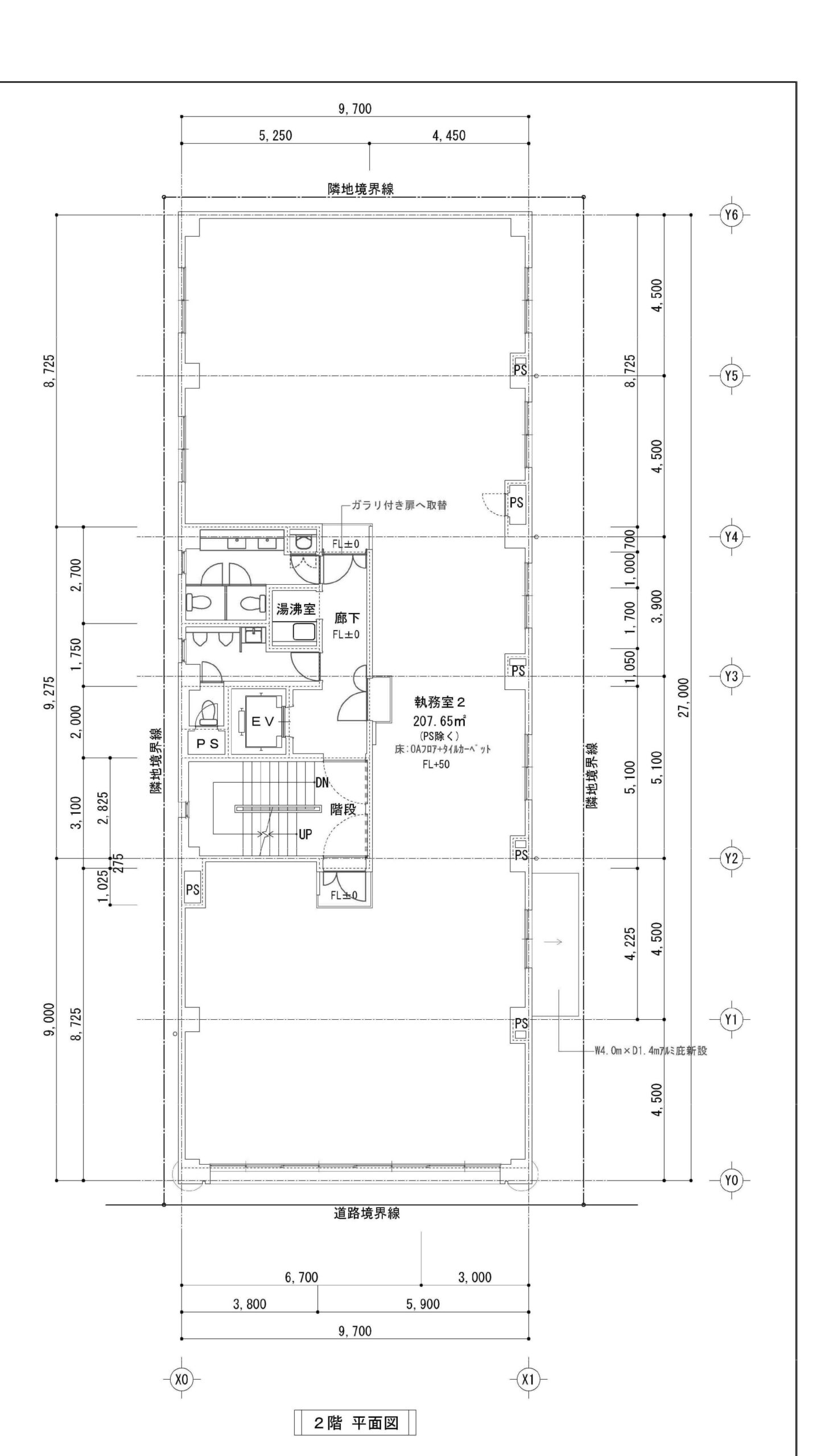
- 面積 :
- 207.65㎡/62.81坪
- 相談可能業種 :
- オフィス
物件詳細情報
- 物件名 :
- 九総信第2ビル 2F
- 所在地 :
- 福岡県福岡市博多区博多駅東1丁目10番24
- 最寄駅 :
- JR鹿児島本線「博多駅」 徒歩9分
地下鉄空港線「東比恵駅」 徒歩12分
地下鉄空港線「祇園駅」 徒歩15分
- 相談可能業種 :
- オフィス
- 賃料 :
- ¥897,600
- 敷金 :
- 10ヶ月
- 礼金 :
- 0円
- 保証金 :
- 0円
- 引き渡し :
- 事務所仕上げ
- 現況 :
- 空室
- 引き渡し時期 :
- 相談
- 賃貸借区分 :
- 定期借家
- 契約期間 :
- 10年
- 面積 :
- 207.65㎡/62.81坪
- 建物構造 :
- RC
- 階建 :
- 地上5階建ての2階部分
- 築年月 :
- 1983年9月
- バルコニー :
- 無し
- 駐車場 :
- 空き無し
- 設備 :
- オートロック、エレベーター、エアコン、温水洗浄便座、電気
- 特記事項 :
- 飲⾷店不可
2025年8月末大規模改修工事完了
オートロックあり(カードキーで24時間出入り自由)
- 取り引き態様 :
- 仲介先物
- 情報更新日 :
- 2025年10月28日
- 次回更新予定日 :
- 2025年11月28日
地図を見る
ストリートビューを見る
¥897,600 / 207.65㎡
条件が近い物件
-
筑紫口事務所
82.5万円
管: 0円
57.69坪
博多駅 9分
24時間利用可!博多駅エリアの大型オフィス。2025年8月末に大規模改修工事が完...
-
筑紫口事務所
89.32万円
管: 0円
62.52坪
博多駅 9分
24時間利用可!博多駅エリアの大型オフィス。2025年8月末に大規模改修工事が完...
-
筑紫口事務所
435.006万円
管: 0円
63.67坪
博多駅 5分
博多駅徒歩5分 / ガラスウォールのオフィスビル。九州の玄関口・博多駅からわずか...
-
筑紫口事務所
114.4万円
管: 0円
65坪
博多駅 5分
博多駅筑紫口徒歩4分。ビジネスの速度を上げる一等地オフィスビル。ガラスウォールが...