第二博多偕成ビル 10F
博多駅徒歩6分 / ビル最上階のハイグレードオフィス。
九州の玄関口、博多駅から徒歩6分という抜群のアクセスが最大の魅力です。
新幹線や空港への移動もスムーズで、出張が多い企業や広域から人材を集める企業の拠点として最高のパフォーマンスを発揮します。
「72.52坪」という面積は、企業の成長フェーズにも柔軟に対応できる戦略的な広さです。
福岡県福岡市博多区博多駅南1丁目10番4
- 賃料 :
- ¥1,555,554
- 管理費 :
- ¥279,292
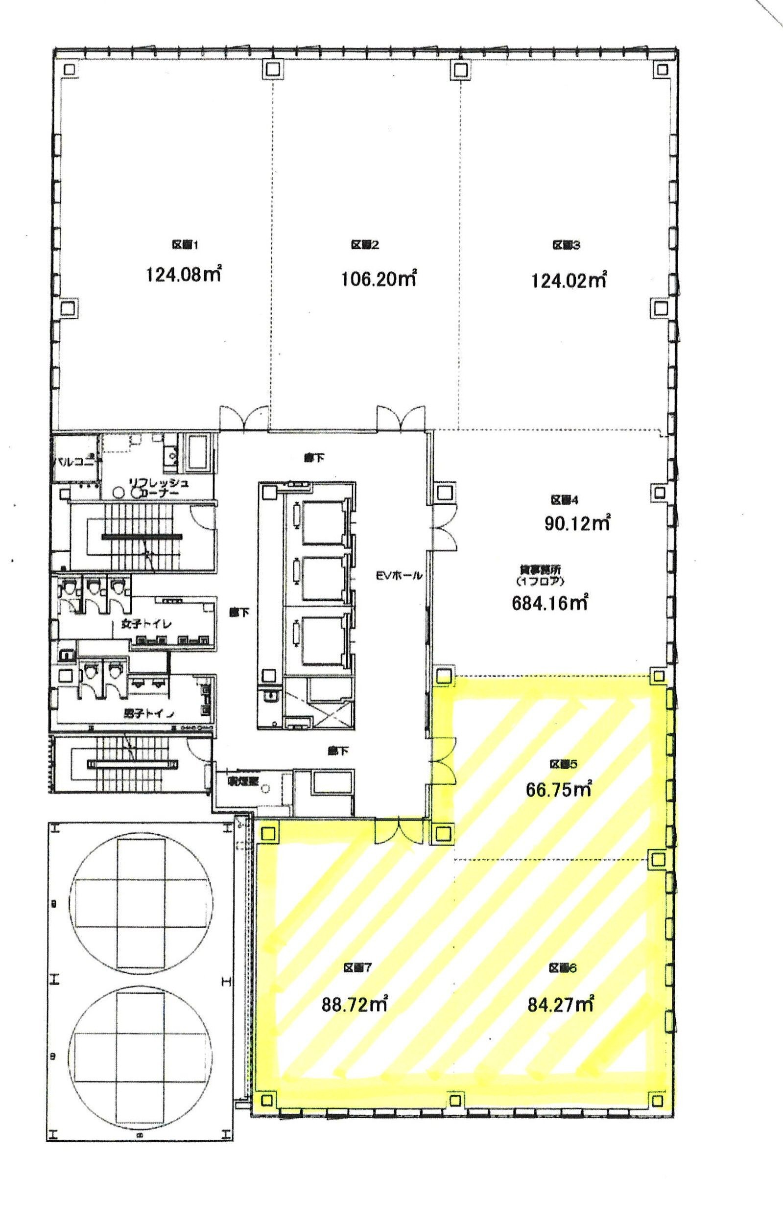
- 面積 :
- 239.74㎡/72.52坪
- 相談可能業種 :
- オフィス
物件詳細情報
- 物件名 :
- 第二博多偕成ビル 10F
- 所在地 :
- 福岡県福岡市博多区博多駅南1丁目10番4
- 最寄駅 :
- JR鹿児島本線「博多駅」 徒歩6分
地下鉄空港線「祇園駅」 徒歩18分
地下鉄七隈線「櫛田神社前駅」 徒歩17分
- 相談可能業種 :
- オフィス
- 賃料 :
- ¥1,555,554
- 共益費 :
- ¥279,292
- 敷金 :
- 12ヶ月
- 礼金 :
- 0円
- 保証金 :
- 0円
- 引き渡し :
- 現況渡し
- 現況 :
- 居住中
- 引き渡し時期 :
- 期日指定 2026年1月5日
- 契約期間 :
- 2年
- 面積 :
- 239.74㎡/72.52坪
- 建物構造 :
- 鉄骨造
- 階建 :
- 地上10階建ての10階部分
- 築年月 :
- 2012年8月
- 駐車場 :
- 空き無し
- 設備 :
- 電気
- 取り引き態様 :
- 仲介先物
- 情報更新日 :
- 2025年11月28日
- 次回更新予定日 :
- 2025年12月28日
地図を見る
ストリートビューを見る
¥1,555,554 / 239.74㎡