エリアント大名 2F
西鉄天神大牟田線天神駅徒歩8分 / 国体道路沿いの新築ビル2階
トレンドの発信地・大名に新たなビジネスの舞台が誕生します。
約25坪のスケルトン空間を自由にデザインすることができ、物販・サービス・クリニック・軽飲食など、幅広い業種の相談が可能となっております。
この場所から福岡の新しいトレンドを創り上げてください。
福岡県福岡市中央区大名1丁目1番8
- 賃料 :
- ¥838,200
- 面積 :
- 83.97㎡/25.4坪
- 相談可能業種 :
- 軽飲食、飲食全般、美容、医療・クリニック、小売り・物販、サービス
物件詳細情報
- 物件名 :
- エリアント大名 2F
- 所在地 :
- 福岡県福岡市中央区大名1丁目1番8
- 最寄駅 :
- 西鉄天神大牟田線「西鉄福岡駅」 徒歩8分
地下鉄空港線「天神駅」 徒歩9分
地下鉄七隈線「赤坂駅」 徒歩7分
- 相談可能業種 :
- 軽飲食飲食全般美容医療・クリニック小売り・物販サービス
- 賃料 :
- ¥838,200
- 敷金 :
- 12ヶ月
- 礼金 :
- 0円
- 保証金 :
- 0円
- 引き渡し :
- スケルトン
- 現況 :
- 未完成
- 引き渡し時期 :
- 相談
- 契約期間 :
- 3年
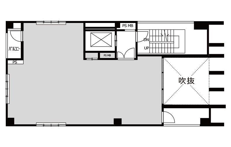
- 面積 :
- 83.97㎡/25.4坪
- 建物構造 :
- 鉄骨造
- 階建 :
- 地上7階建ての2階部分
- 築年月 :
- 2025年6月
- バルコニー :
- 有り
- 駐車場 :
- 無し
- 設備 :
- エレベーター、電気
- 取り引き態様 :
- 仲介先物
- 情報更新日 :
- 2025年11月08日
- 次回更新予定日 :
- 2025年12月08日
地図を見る
ストリートビューを見る
¥838,200 / 83.97㎡
条件が近い物件
-
天神・大名多用途
38.6342万円
管: 0円
20.66坪
天神駅 4分
天神駅4分・人気の大名エリア。約20坪の洗練空間でブランドを創る。天神駅から徒歩...
-
天神・大名多用途
41.7956万円
管: 59,708円
27.14坪
赤坂駅 8分
飲食・美容相談可。造作譲渡で継承する27坪のサロン。大名1丁目のランドマーク的な...
-
天神・大名多用途
52.998万円
管: 112,420円
29.21坪
西鉄福岡駅 9分
天神徒歩圏。看板掲出可・大名の2階。トレンドの発信地「大名1丁目」のアドレスは、...
-
天神・大名多用途
83.82万円
管: 0円
25.40坪
西鉄福岡駅 8分
人気の大名1丁目!国体道路沿いの新築テナントビル。2025年6月完成予定の新築ビ...
-
天神・大名店舗
69.4232万円
管: 0円
27.43坪
西鉄福岡駅 8分
大名・国体道路沿い。2025年新築の最上階。
「国体道路沿い」とい... -
天神・大名店舗
78.54万円
管: 0円
23.81坪
西鉄福岡駅 4分
天神駅4分!天神中心地の最新店舗ビル。2024年11月竣工の新築ビル3階です。<...
-
天神・大名多用途
69.4298万円
管: 0円
28.69坪
天神駅 6分
大名ガーデンシティ至近!約29坪の好立地テナント。天神駅徒歩6分、多くの人が行き...
-
天神・大名店舗
65.582万円
管: 0円
29.81坪
西鉄福岡駅 8分
大名1丁目新築。国体道路沿いの6階。新築ながら「事務所仕上げ」で引き渡される希少...