プラッツ天神 3F
天神西通り沿いの約48坪。整体院やスクールに最適な自由空間。
天神駅徒歩5分という抜群のアクセスは、生徒が集まる音楽教室や英会話スクールに最適です。
スケルトン物件の為、整体院やフィットネスジム等の複数の施術ベッドやトレーニングマシンを自由に配置することもできます。
約48坪の空間で、理想を形にしてください。
福岡県福岡市中央区天神2丁目5番17
- 賃料 :
- ¥922,075
- 管理費 :
- ¥158,070
- 面積 :
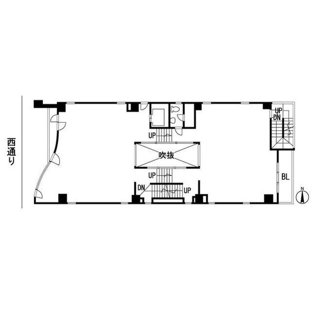
- 158.35㎡/47.9坪
- 相談可能業種 :
- 医療・クリニック、サービス
物件詳細情報
- 物件名 :
- プラッツ天神 3F
- 所在地 :
- 福岡県福岡市中央区天神2丁目5番17
- 最寄駅 :
- 地下鉄空港線「天神駅」 徒歩5分
西鉄天神大牟田線「西鉄福岡駅」 徒歩5分
地下鉄七隈線「天神南駅」 徒歩7分
- 相談可能業種 :
- 医療・クリニックサービス
- 賃料 :
- ¥922,075
- 共益費 :
- ¥158,070
- 敷金 :
- 8ヶ月
- 礼金 :
- 0円
- 保証金 :
- 0円
- その他一時金 :
- 看板製作料:242,000円 ふれんず保証料:540,072円
- 引き渡し :
- スケルトン
- 現況 :
- 空室
- 引き渡し時期 :
- 相談
- 賃貸借区分 :
- 普通借家
- 契約期間 :
- 2年
- 面積 :
- 158.35㎡/47.9坪
- 建物構造 :
- SRC
- 階建 :
- 地上7階建ての3階部分
- 築年月 :
- 1988年3月
- バルコニー :
- 有り
- 駐車場 :
- 無し
- 設備 :
- エレベーター、トイレ、電気
- 特記事項 :
- テイクアウト・マツエク・飲食店・物販NG。
美容クリニックは競合するので現段階ではNG。
閉館時間:22時~8時(夜間営業不可)。
※クリニック(診療科目要相談)整体・マッサージ/音楽・英会話教室/フィットネス系相談可
- 取り引き態様 :
- 仲介先物
- 情報更新日 :
- 2025年10月14日
- 次回更新予定日 :
- 2025年11月14日
地図を見る
ストリートビューを見る
¥922,075 / 158.35㎡