第7森谷ビル 7F
博多駅徒歩8分!最上階ワンフロア独立オフィス。
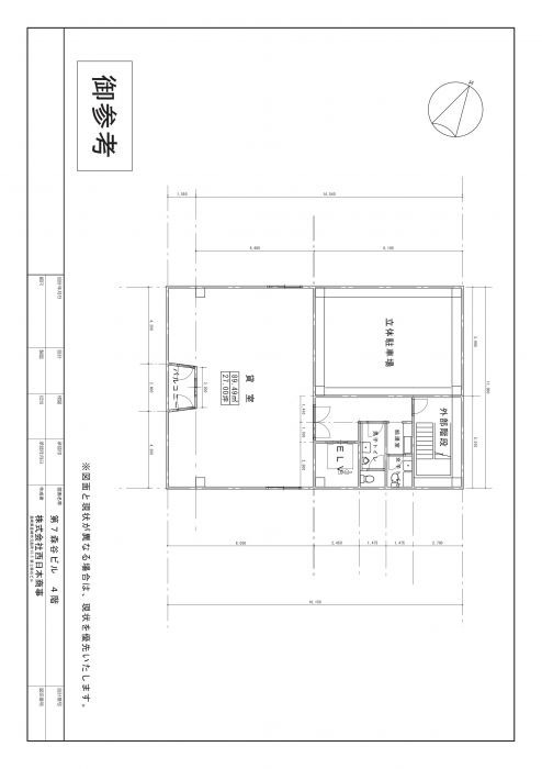
約27坪の広さは、現代の多様な働き方に最適化できます。
このエリアでは極めて希少な駐車場を多数確保。
お車での通勤や来客が多い企業様にこれ以上ないアドバンテージを提供します。
福岡県福岡市博多区博多駅前4丁目24番23
- 賃料 :
- ¥356,400
- 管理費 :
- ¥59,400
- 面積 :
- 89.26㎡/27坪
- 相談可能業種 :
- オフィス
物件詳細情報
- 物件名 :
- 第7森谷ビル 7F
- 所在地 :
- 福岡県福岡市博多区博多駅前4丁目24番23
- 最寄駅 :
- JR鹿児島本線「博多駅」 徒歩8分
地下鉄空港線「博多駅」 徒歩12分
地下鉄七隈線「櫛田神社前駅」 徒歩14分
- 相談可能業種 :
- オフィス
- 賃料 :
- ¥356,400
- 共益費 :
- ¥59,400
- 敷金 :
- 10ヶ月
- 礼金 :
- 0円
- 保証金 :
- 0円
- 精算方式 :
- 実費
- 引き渡し :
- 事務所仕上げ
- 現況 :
- 空室
- 引き渡し時期 :
- 即時
- 契約期間 :
- 2年
- 面積 :
- 89.26㎡/27坪
- 建物構造 :
- 鉄骨造
- 階建 :
- 地上7階建ての7階部分
- 築年月 :
- 1992年2月
- バルコニー :
- 有り
- 駐車場 :
- 空き有り 25,300円~
- 設備 :
- エレベーター、エアコン、電気
- 特記事項 :
- 飲食店不可
明るい3方窓有
1フロア1テナント
雑費5.500円
【駐車場】
機械、屋根有
敷金:3ヶ月
※空き状況につきましては随時お問い合わせください。
- 取り引き態様 :
- 仲介先物
- 情報更新日 :
- 2025年11月04日
- 次回更新予定日 :
- 2025年12月04日
地図を見る
ストリートビューを見る
¥356,400 / 89.26㎡
条件が近い物件
-
博多口事務所
33.22万円
管: 33,000円
22.10坪
博多駅 10分
博多駅徒歩10分!約22坪の築浅オフィス。2020年築ならではの洗練された外観と...
-
博多口事務所
35.64万円
管: 49,170円
22.33坪
博多駅 9分
博多駅徒歩圏。2022年完成の築浅オフィスビル。
... -
博多口事務所
41.778万円
管: 49,170円
22.33坪
博多駅 11分
博多駅徒歩圏。築浅ビルの好条件オフィス。ビル最上階の10階部分に位置する、眺望の...
-
博多口事務所
29.2342万円
管: 63,553円
23.1坪
博多駅 7分
博多駅徒歩7分 / 駐車場・会議室ありで便利なオフィス。1階のオフィスで、さらに...
-
博多口事務所
31.46万円
管: 28,600円
26.02坪
博多駅 8分
博多駅徒歩8分。最上階で叶える、集中できる執務空間。「博多駅」の3路線(七隈線・...
-
博多口事務所
29.2341万円
管: 63,552円
23.11坪
博多駅 7分
博多駅徒歩7分の1階路面区画 / 大規模リニューアル済。博多駅徒歩7分という好立...
-
博多口事務所
33.22万円
管: 33,000円
22.1坪
博多駅 14分
令和元年12月完成!ワンフロア貸切のプライベートオフィス。ワンフロア1社だけのプ...
-
博多口事務所
35.64万円
管: 49,170円
22.42坪
博多駅 11分
初期費用を劇的に抑える博多駅9分の築浅オフィス。即入居可!2022年完成の築浅ビ...