アデカッツビル 3-5F
薬院六つ角すぐ!3-5階一括メゾネット区画。
薬院大通駅から徒歩5分、地下鉄駅、金融機関、コンビニ等も近く利便性も良い好立地です。
元々設計事務所として使用されていた雰囲気のある小規模デザインビルです。
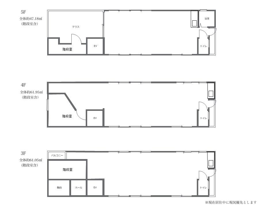
3フロア(3-5階)を一括利用できるため、階ごとに機能的なゾーニングが可能。
プライバシーとデザイン性を重視する企業様に最適です。
福岡県福岡市中央区薬院2丁目14番28
- 賃料 :
- ¥330,000
- 面積 :
- 170.12㎡/51.46坪
- 相談可能業種 :
- 美容、医療・クリニック、小売り・物販、サービス、オフィス
物件詳細情報
- 物件名 :
- アデカッツビル 3-5F
- 所在地 :
- 福岡県福岡市中央区薬院2丁目14番28
- 最寄駅 :
- 地下鉄七隈線「薬院大通駅」 徒歩5分
西鉄天神大牟田線「西鉄福岡駅」 徒歩8分
地下鉄七隈線「薬院駅」 徒歩9分
- 相談可能業種 :
- 美容医療・クリニック小売り・物販サービスオフィス
- 賃料 :
- ¥330,000
- 敷金 :
- 3ヶ月
- 礼金 :
- 1ヶ月
- 保証金 :
- 0円
- 精算方式 :
- 実費
- 引き渡し :
- 現況渡し
- 現況 :
- 居住中
- 引き渡し時期 :
- 予定 2026年3月上旬
- 契約期間 :
- 2年
- 面積 :
- 170.12㎡/51.46坪
- 建物構造 :
- 鉄骨造
- 階建 :
- 地上5階建ての3-5階部分
- 築年月 :
- 1996年4月
- バルコニー :
- 有り
- 駐車場 :
- 無し
- 設備 :
- エレベーター、給湯、トイレ、電気、水道
- 特記事項 :
- 飲食店不可、民泊不可
2026年2月末退去予定
現況渡し、改装相談可能
5階建てビル1~2階は飲食店が入居中、3~5階部分の一括募集です。(入口は3階部分)
記載の床面積には区画内の階段室を含みます。
入居者による改装等がありますので間取り図は現況優先。
5階に浴室が付いていますがサービス設置品となります。
2階→5階への移動にはホームエレベーターが設置されています。
- 取り引き態様 :
- 仲介先物
- 情報更新日 :
- 2025年11月25日
- 次回更新予定日 :
- 2025年12月25日
地図を見る
ストリートビューを見る
¥330,000 / 170.12㎡