TOMIKE TAKASAGO 303
天井高3.3mの圧倒的開放感!2024年築・高砂の新築10坪拠点。
西鉄平尾駅に加え薬院・渡辺通も徒歩圏内でアクセス良好です。
周辺にはスーパーやコンビニ、銀行が揃いビジネス環境も充実しています。
天井高3,300mmの開放的な空間は、アパレルショップやデザイン事務所など空間演出にこだわりたい事業主様に最適な希少価値の高い一室です。
福岡県福岡市中央区高砂2丁目14番3
- 賃料 :
- ¥167,635
- 管理費 :
- ¥5,500
- 面積 :
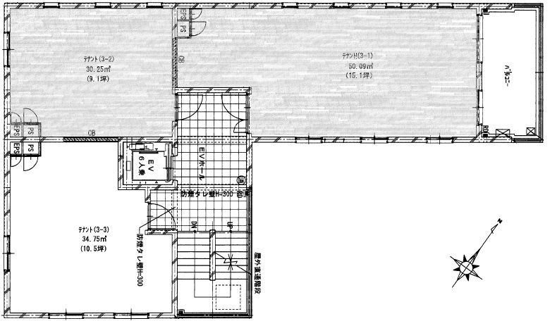
- 34.75㎡/10.51坪
- 相談可能業種 :
- 軽飲食、飲食全般、美容、医療・クリニック、小売り・物販、サービス、オフィス
物件詳細情報
- 物件名 :
- TOMIKE TAKASAGO 303
- 所在地 :
- 福岡県福岡市中央区高砂2丁目14番3
- 最寄駅 :
- 西鉄天神大牟田線「西鉄平尾駅」 徒歩9分
地下鉄七隈線「渡辺通駅」 徒歩14分
地下鉄七隈線「薬院駅」 徒歩14分
- 相談可能業種 :
- 軽飲食飲食全般美容医療・クリニック小売り・物販サービスオフィス
- 賃料 :
- ¥167,635
- 共益費 :
- ¥5,500
- 敷金 :
- 4ヶ月
- 礼金 :
- 1ヶ月
- 保証金 :
- 0円
- 精算方式 :
- 実費
- その他一時金 :
- テナント名入れ代:44,000円 鍵交換代(1ヶ所):19,800円
- 引き渡し :
- スケルトン
- 現況 :
- 空室
- 引き渡し時期 :
- 相談
- 契約期間 :
- 2年
- 面積 :
- 34.75㎡/10.51坪
- 建物構造 :
- RC
- 階建 :
- 地上3階建ての3階部分
- 築年月 :
- 2024年10月
- バルコニー :
- 無し
- 駐車場 :
- 無し
- 設備 :
- エレベーター、防犯カメラ、電気、水道
- 特記事項 :
- 飲食店相談可
職種要相談
天井高3,300mm
間取、設備、方位等は現況優先
3Fはガス管無し、ガス設備設置不可
2テナント(302.303号)契約して1テナントにする工事相談可(賃借人様で要工事)、イメージ図の間取りをご確認ください。
2.3Fのテナントの室外機置場は屋上
電力会社と弊社が高圧一括受電契約を行い、変圧器(キュービクル)を通して各テナントに電気供給、電気料金は弊社が委託した業者が毎月検針を行い金額を算出し、弊社より後日請求します。
・駐輪場無、敷地内駐輪禁止、ゴミ置き場無(各自事業用の要契約)
・貸室内の全ての設備(24時間換気扇、消火器、感知器、非常用照明等)、および網戸がある場合はサービス設置
内装工事の際には煙感知器以外の電気機器類の配線を各自でテナント内に設けます。
ブレーカーに繋ぎなおしていただく必要がございます。(避難誘導灯、非常用照明、24時間換気扇等)
・水町費実費
・保険はテナント側で加入(賠償責任特約付きの保険)
・本物件並びに本物件敷地内は、健康増進法一部改正により全面禁煙(加熱式煙草も含む)
・テナント名入れは弊社指定業者で指定箇所(テナント名を入れる看板)に入れます。
建物左側の壁、1FEV横の2ヶ所のため44,000円税込
・竣工前の図面ではTVアンテナ有、回線のみパイプスペースまで引込みですが、現状は地上波の受信レベルが低いためTV受信設備無しとなりました。
・保証会社:ジェイリース株式会社、J-AKINAI 初回保証料100%(月額賃料等)、年/総額の10%更新料、月額賃料等は保証会社による引落(300円+税)
※保証人、保証会社、収納代行必須(法人含む)
・退去予告3ヶ月以上前、違約金1年未満2ヶ月2年未満1ヶ月、2年契約自動更新
・スケルトン渡し、退去時はスケルトン戻し
不特定多数の出入りがある職種で福祉のまちづくり条例に該当する場合、事前に住宅都市局建築指導部建築審査課と内装に関する打合せ、手続等が必要となる場合がございます。
直接こちらにご確認下さい→福岡市住宅都市局 建築指導部 建築審査課 電話番号: 092-711-4577
- 取り引き態様 :
- 仲介先物
- 情報更新日 :
- 2026年01月27日
- 次回更新予定日 :
- 2026年02月27日
地図を見る
ストリートビューを見る
¥167,635 / 34.75㎡