藤井ビル 2F
博多駅徒歩7分!機動力高まるオフィス。
博多駅徒歩7分の好立地に加え、敷地内駐車場に空きがあります。
車移動が必須の営業拠点や、来客の多い士業・来店型オフィスとしても優れた機動力を発揮します。
希少な「契約期間10年」の物件となっているので、長期視点で腰を据えて事業を育てたい企業に最適な安定のビジネス拠点です。
福岡県福岡市博多区博多駅前3丁目10番24
- 賃料 :
- ¥208,478
- 管理費 :
- ¥49,638
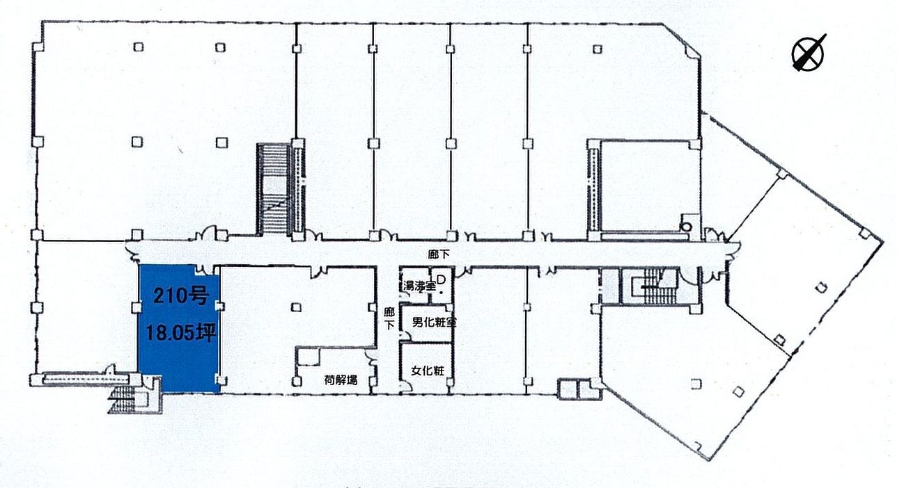
- 面積 :
- 59.66㎡/18.05坪
- 相談可能業種 :
- オフィス
物件詳細情報
- 物件名 :
- 藤井ビル 2F
- 所在地 :
- 福岡県福岡市博多区博多駅前3丁目10番24
- 最寄駅 :
- 地下鉄七隈線「博多駅」 徒歩7分
地下鉄七隈線「櫛田神社前駅」 徒歩9分
地下鉄空港線「祇園駅」 徒歩11分
- 相談可能業種 :
- オフィス
- 賃料 :
- ¥208,478
- 共益費 :
- ¥49,638
- 敷金 :
- 10ヶ月
- 礼金 :
- 0円
- 保証金 :
- 0円
- 引き渡し :
- 現況渡し
- 現況 :
- 空室
- 引き渡し時期 :
- 即時
- 賃貸借区分 :
- 定期借家
- 契約期間 :
- 10年
- 面積 :
- 59.66㎡/18.05坪
- 建物構造 :
- SRC
- 階建 :
- 地上10階、地下1階建ての2階部分
- 築年月 :
- 1972年3月
- 駐車場 :
- 空き有り 24,200円~
- 設備 :
- エアコン、電気
- 特記事項 :
- 飲食店不可
共用部に男女別トイレ有り
- 取り引き態様 :
- 仲介先物
- 情報更新日 :
- 2026年01月23日
- 次回更新予定日 :
- 2026年02月23日
地図を見る
ストリートビューを見る
¥208,478 / 59.66㎡
条件が近い物件
-
博多口多用途
56.43万円
管: 0円
20.52坪
博多駅 6分
博多駅徒歩6分!美麗なガラスウォールのオフィスビル。博多駅至近、ANAクラウンプ...
-
博多口事務所
29.2974万円
管: 63,690円
23.16坪
博多駅 7分
博多駅徒歩7分!貸会議室や駐車場も備えた戦略的拠点。博多駅エリアの主要ビジネスゾ...
-
博多口事務所
18.472万円
管: 47,490円
17.27坪
博多駅 4分
博多駅徒歩4分!角地ビルの開放感あふれる17坪オフィス。周辺には銀行、博多郵便局...
-
博多口事務所
56.43万円
管: 0円
20.53坪
博多駅 6分
博多駅徒歩6分!視認性抜群の1階路面オフィス。博多駅徒歩6分の末広通り沿いに位置...
-
博多口事務所
36.71万円
管: 0円
18.54坪
博多駅 5分
福岡交通センター前・角地の好立地!機動力重視の企業様へ。博多駅徒歩5分、博多バス...
-
博多口多用途
16.5万円
管: 0円
17.08坪
祇園駅 4分
博多区役所すぐそば。約17坪3LDKの店舗事務所。博多区役所のすぐ横、空港線祇園...
-
博多口多用途
16.4万円
管: 5,500円
14.87坪
博多駅 10分
博多駅徒歩圏内。約14坪の隠れ家空間。博多駅徒歩10分、ビジネス街の中心博多駅前...
-
博多口多用途
21.01万円
管: 42,020円
15.28坪
祇園駅 3分
祇園駅3分・博多駅6分!機動力を最大化する博多ビジネスの最前線拠点。ビジネスの中...