天神ブリッククロス A-1-1
天神駅直結の新ランドマーク。飲食店も可能な1階路面店舗。
天神駅直結という天候に左右されない究極のアクセス。
昼夜を問わず絶えない人通りが、最高の集客を実現します。
新築ビルでビジネスの可能性を無限に広げませんか。
福岡県福岡市中央区天神1丁目14番18
- 賃料 :
- ¥1,440,120
- 面積 :
- 124.94㎡/37.79坪
- 相談可能業種 :
- 軽飲食、飲食全般、美容、医療・クリニック、小売り・物販、サービス
物件詳細情報
- 物件名 :
- 天神ブリッククロス A-1-1
- 所在地 :
- 福岡県福岡市中央区天神1丁目14番18
- 最寄駅 :
- 地下鉄空港線「天神駅」 徒歩5分
西鉄天神大牟田線「西鉄福岡駅」 徒歩6分
地下鉄七隈線「天神南駅」 徒歩5分
- 相談可能業種 :
- 軽飲食飲食全般美容医療・クリニック小売り・物販サービス
- 賃料 :
- ¥1,440,120
- 敷金 :
- 12ヶ月
- 礼金 :
- 0円
- 保証金 :
- 0円
- 引き渡し :
- 現況渡し
- 現況 :
- 未完成
- 引き渡し時期 :
- 相談
- 賃貸借区分 :
- 定期借家
- 契約期間 :
- 5年
- 面積 :
- 124.94㎡/37.79坪
- 建物構造 :
- 鉄骨造
- 階建 :
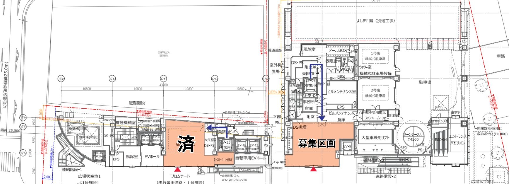
- 地上18階、地下2階建ての1階部分
- 築年月 :
- 2025年4月
- バルコニー :
- 無し
- 駐車場 :
- 無し
- 設備 :
- エレベーター、電気、水道
- 特記事項 :
- 飲食店可
地下鉄コンコースB1からエスカレーター有
鉄骨造、一部SRC
- 取り引き態様 :
- 仲介先物
- 情報更新日 :
- 2025年11月14日
- 次回更新予定日 :
- 2025年12月14日
地図を見る
ストリートビューを見る
¥1,440,120 / 124.94㎡
条件が近い物件
-
天神・大名多用途
49.973万円
管: 107,085円
32.45坪
天神駅 4分
2026年2月入居可。天神2丁目・福銀横の好立地を確保。「福岡銀行本店横」という...
-
天神・大名多用途
72.336万円
管: 135,960円
32.85坪
西鉄福岡駅 8分
大名1丁目の好立地!美容サービス店相談可。国体道路沿いに面した大名1丁目の好立地...
-
天神・大名多用途
38.72万円
管: 0円
35.20坪
天神駅 6分
天神・赤坂Wアクセス!大名2丁目の約35坪空間。天神・赤坂両駅へ徒歩6分という抜...
-
天神・大名多用途
43.67万円
管: 0円
39.69坪
天神駅 6分
天神・赤坂Wアクセス!大名2丁目の約39.7坪空間。天神・赤坂両駅へ徒歩6分とい...
-
天神・大名店舗
67.7358万円
管: 94,078円
34.22坪
天神駅 7分
天神西通り至近!ビル最上階ワンフロア独立店舗。天神西通りからすぐの人気の大名エリ...
-
天神・大名多用途
147.488万円
管: 0円
33.52坪
西鉄福岡駅 5分
天神きらめき通り沿い!岩田屋本館前の絶好ロケーション。福岡のハイブランドが軒を連...
-
天神・大名店舗
105.6万円
管: 0円
38.33坪
西鉄福岡駅 10分
大名の隠れ家/母屋と離れのある古民家風店舗 / 飲食店居抜き福岡市中央区大名に佇...