エリアント大名 7F
2025年6月竣工!国体道路沿いの新築テナントビル。
西鉄福岡(天神)駅へも徒歩約8分と、アクセス良好です。
常に多くの人や車の往来があり、視認性も抜群です。
スケルトン渡しのため、あなたのブランドイメージを隅々まで反映させた理想の店舗やオフィスを自由に創造できます。
福岡県福岡市中央区大名1丁目1番8
- 賃料 :
- ¥694,232
- 面積 :
- 90.71㎡/27.44坪
- 相談可能業種 :
- 軽飲食、飲食全般、美容、医療・クリニック、小売り・物販、サービス
物件詳細情報
- 物件名 :
- エリアント大名 7F
- 所在地 :
- 福岡県福岡市中央区大名1丁目1番8
- 最寄駅 :
- 地下鉄七隈線「天神南駅」 徒歩7分
西鉄天神大牟田線「西鉄福岡駅」 徒歩8分
地下鉄空港線「天神駅」 徒歩9分
- 相談可能業種 :
- 軽飲食飲食全般美容医療・クリニック小売り・物販サービス
- 賃料 :
- ¥694,232
- 敷金 :
- 12ヶ月
- 礼金 :
- 0ヶ月
- 保証金 :
- 0ヶ月
- 引き渡し :
- スケルトン
- 現況 :
- 未完成
- 引き渡し時期 :
- 相談
- 契約期間 :
- 3
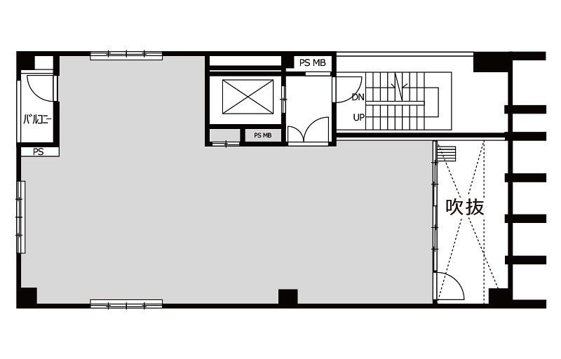
- 面積 :
- 90.71㎡/27.44坪
- 建物構造 :
- 鉄骨造
- 階建 :
- 地上7階建ての7階部分
- 築年月 :
- 2025年6月
- バルコニー :
- 有り
- 設備 :
- エレベーター、電気
- 特記事項 :
- 福岡市福祉のまちづくり条例に伴い役所との事前協議が必要
1階~4階・7階:スケルトン渡し
5階~6階:事務所仕上げ
- 取り引き態様 :
- 仲介先物
- 情報更新日 :
- 2025年11月08日
- 次回更新予定日 :
- 2025年12月08日
地図を見る
ストリートビューを見る
¥694,232 / 90.71㎡
条件が近い物件
-
天神・大名多用途
41.7956万円
管: 59,708円
27.14坪
赤坂駅 8分
飲食・美容相談可。造作譲渡で継承する27坪のサロン。大名1丁目のランドマーク的な...
-
天神・大名多用途
49.973万円
管: 107,085円
32.45坪
天神駅 4分
2026年2月入居可。天神2丁目・福銀横の好立地を確保。「福岡銀行本店横」という...
-
天神・大名多用途
52.998万円
管: 112,420円
29.21坪
西鉄福岡駅 9分
天神徒歩圏。看板掲出可・大名の2階。トレンドの発信地「大名1丁目」のアドレスは、...
-
天神・大名多用途
83.82万円
管: 0円
25.40坪
西鉄福岡駅 8分
人気の大名1丁目!国体道路沿いの新築テナントビル。2025年6月完成予定の新築ビ...
-
天神・大名店舗
69.4232万円
管: 0円
27.43坪
西鉄福岡駅 8分
大名・国体道路沿い。2025年新築の最上階。
「国体道路沿い」とい... -
天神・大名店舗
78.54万円
管: 0円
23.81坪
西鉄福岡駅 4分
天神駅4分!天神中心地の最新店舗ビル。2024年11月竣工の新築ビル3階です。<...
-
天神・大名多用途
72.336万円
管: 135,960円
32.85坪
西鉄福岡駅 8分
大名1丁目の好立地!美容サービス店相談可。国体道路沿いに面した大名1丁目の好立地...
-
天神・大名多用途
69.4298万円
管: 0円
28.69坪
天神駅 6分
大名ガーデンシティ至近!約29坪の好立地テナント。天神駅徒歩6分、多くの人が行き...