Mビル1号館 7F
博多駅徒歩4分、視認性抜群の角地。
地下鉄七隈線・空港線・JRの3路線が使える博多駅から徒歩4〜7分。
角地に位置するため視認性が高く、来客誘導もスムーズです。
銀行やコンビニがすぐ近くに揃い、ビジネスの効率を最大化する絶好のロケーションです。
福岡県福岡市博多区博多駅前3丁目26番5
- 賃料 :
- ¥550,000
- 管理費 :
- ¥165,000
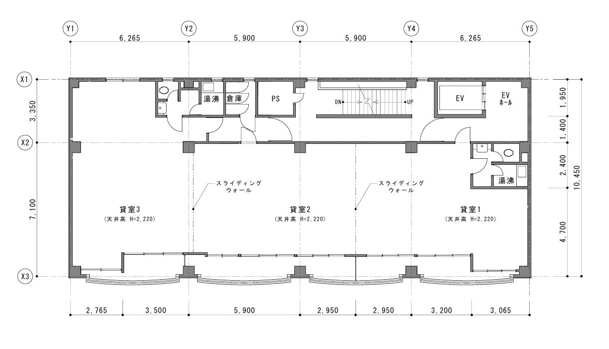
- 面積 :
- 165.29㎡/50坪
- 相談可能業種 :
- オフィス
物件詳細情報
- 物件名 :
- Mビル1号館 7F
- 所在地 :
- 福岡県福岡市博多区博多駅前3丁目26番5
- 最寄駅 :
- 地下鉄七隈線「博多駅」 徒歩4分
地下鉄七隈線「櫛田神社前駅」 徒歩7分
地下鉄空港線「祇園駅」 徒歩9分
- 相談可能業種 :
- オフィス
- 賃料 :
- ¥550,000
- 共益費 :
- ¥165,000
- 敷金 :
- 12ヶ月
- 礼金 :
- 0円
- 保証金 :
- 0円
- 引き渡し :
- 現況渡し
- 現況 :
- 空室
- 引き渡し時期 :
- 即時
- 賃貸借区分 :
- 定期借家
- 契約期間 :
- 5年
- 面積 :
- 165.29㎡/50坪
- 建物構造 :
- SRC
- 階建 :
- 地上9階、地下1階建ての7階部分
- 築年月 :
- 1974年4月
- 駐車場 :
- 無し
- 設備 :
- エレベーター、エアコン、給湯、電気、水道
- 特記事項 :
- 2035年までの定期借家契約
- 取り引き態様 :
- 仲介先物
- 情報更新日 :
- 2026年02月14日
- 次回更新予定日 :
- 2026年03月14日
地図を見る
ストリートビューを見る
¥550,000 / 165.29㎡
条件が近い物件
-
博多口事務所
79.57万円
管: 0円
48.23坪
博多駅 4分
博多駅徒歩3分!OAフロア・貸会議室完備。機動力重視のモダンオフィス。JR「博多...
-
博多口多用途
90.387万円
管: 180,774円
54.78坪
博多駅 11分
博多駅徒歩圏内。築浅ビルの約54坪区画。2019年築の築浅ビルで、ガラス張りのス...
-
博多口多用途
90.387万円
管: 180,774円
54.78坪
博多駅 11分
博多駅徒歩圏内。築浅ビルの最上階。2019年築の新しいビルで外観・共用部ともに清...
-
博多口事務所
55万円
管: 165,000円
50.00坪
博多駅 7分
博多駅7分!長期ビジョンを描く博多駅前50坪。希少な契約期間9年の物件です。
-
博多口事務所
55万円
管: 165,000円
50坪
博多駅 4分
博多駅4分・1フロア1社の独立性。採光良好な角地オフィス。博多駅(七隈線)から徒...
-
博多口事務所
85.03万円
管: 0円
55.2坪
祇園駅 4分
公園隣接、博多駅前1丁目。55坪の要衝。博多・祇園の2駅利用可でアクセス抜群。<...
-
博多口事務所
90.39万円
管: 180,774円
54.77坪
祇園駅 6分
最上階ワンフロアを独占/博多駅前のハイグレード築浅ビル 博多駅から徒歩10分とい...