事務機ビル 4-6号室
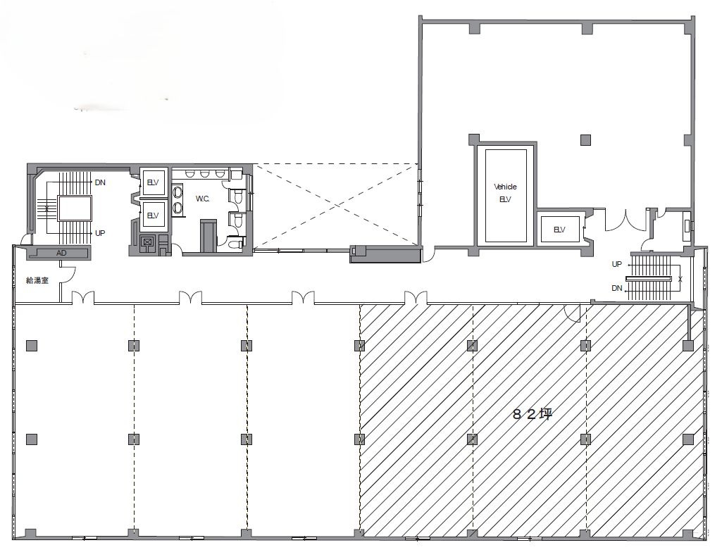
博多駅徒歩5分、82坪。
博多駅近で82坪の広さを確保できる希少な物件です。
館内に貸会議室とリフレッシュルームを完備しており、自社の専有スペースを業務エリアとして最大限有効活用できます。
個別空調やOAフロアも完備し築年数を感じさせない、快適でコストパフォーマンスの高い執務環境を提供します。
福岡県福岡市博多区博多駅南1丁目2番15
- 賃料 :
- ¥1,127,500
- 管理費 :
- ¥22,550
- 面積 :
- 271.07㎡/81.99坪
- 相談可能業種 :
- オフィス
物件詳細情報
- 物件名 :
- 事務機ビル 4-6号室
- 所在地 :
- 福岡県福岡市博多区博多駅南1丁目2番15
- 最寄駅 :
- JR鹿児島本線「博多駅」 徒歩5分
地下鉄空港線「祇園駅」 徒歩18分
地下鉄空港線「東比恵駅」 徒歩19分
- 相談可能業種 :
- オフィス
- 賃料 :
- ¥1,127,500
- 共益費 :
- ¥22,550
- 敷金 :
- 6ヶ月
- 礼金 :
- 0円
- 保証金 :
- 0円
- 精算方式 :
- 実費
- 引き渡し :
- 現況渡し
- 現況 :
- 居住中
- 引き渡し時期 :
- 相談
- 賃貸借区分 :
- 定期借家
- 契約期間 :
- 3年
- 面積 :
- 271.07㎡/81.99坪
- 建物構造 :
- SRC
- 階建 :
- 地上8階、地下1階建ての5階部分
- 築年月 :
- 1968年7月
- 駐車場 :
- 空き無し
- 設備 :
- エレベーター、電気
- 特記事項 :
- 駐車場:屋根有り、機械
共用部リニューアル工事完了済み。
館内に貸会議室・リフレッシュルーム有。
- 取り引き態様 :
- 仲介先物
- 情報更新日 :
- 2026年01月13日
- 次回更新予定日 :
- 2026年02月13日
地図を見る
ストリートビューを見る
¥1,127,500 / 271.07㎡