赤坂セントラルビル 2F
赤坂駅1分!視認性抜群のハイグレードオフィス。
赤坂駅の目の前という圧倒的な好立地で、雨の日もスムーズに来社できるため採用面接や来客の多い企業様のブランディングに大きく貢献します。
タッチレスEVや高機能換気を完備しており、社員の安全を守る最新設備が整っています。
福岡県福岡市中央区大名2丁目12番12
- 賃料 :
- ¥742,572
- 管理費 :
- ¥140,486
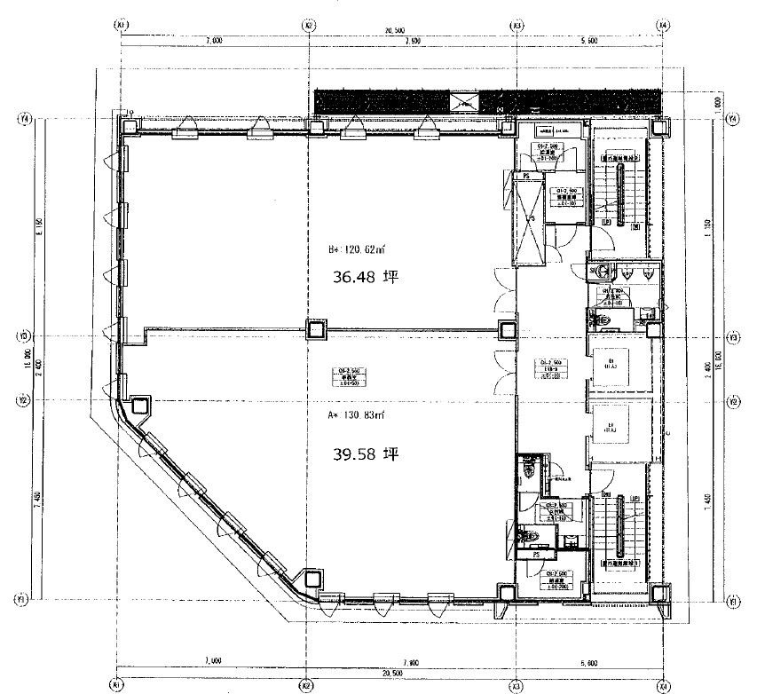
- 面積 :
- 120.63㎡/36.49坪
- 相談可能業種 :
- オフィス
物件詳細情報
- 物件名 :
- 赤坂セントラルビル 2F
- 所在地 :
- 福岡県福岡市中央区大名2丁目12番12
- 最寄駅 :
- 地下鉄空港線「赤坂駅」 徒歩1分
地下鉄空港線「天神駅」 徒歩11分
西鉄天神大牟田線「西鉄福岡駅」 徒歩13分
- 相談可能業種 :
- オフィス
- 賃料 :
- ¥742,572
- 共益費 :
- ¥140,486
- 敷金 :
- 12ヶ月
- 礼金 :
- 0円
- 保証金 :
- 0円
- 引き渡し :
- 事務所仕上げ
- 現況 :
- 空室
- 引き渡し時期 :
- 即時
- 契約期間 :
- 2年
- 面積 :
- 120.63㎡/36.49坪
- 建物構造 :
- 鉄骨造
- 階建 :
- 地上9階建ての2階部分
- 築年月 :
- 2024年1月
- 駐車場 :
- 空き有り 33,000円~
- 設備 :
- エレベーター、エアコン、給湯、電気、水道
- 特記事項 :
- 24時間セキュリティ
男女別トイレ有り
24時間換気センサー付き自動空調システム
タッチレスエレベーター
Low-E複層ガラス
駐車場敷金:1ヶ月
駐車場形式:立体駐車場
- 取り引き態様 :
- 仲介先物
- 情報更新日 :
- 2026年05月18日
- 次回更新予定日 :
- 2026年06月18日
地図を見る
ストリートビューを見る
¥742,572 / 120.63㎡
条件が近い物件
-
天神・大名多用途
52.5万円
管: 0円
36.72坪
赤坂駅 6分
大名の中心でビジネスを加速。専有面積121㎡超の開放的な最上階。
... -
天神・大名事務所
76.3092万円
管: 0円
38.53坪
赤坂駅 2分
赤坂駅直結、明治通り沿いの好立地。38坪の風格漂うオフィス。
地下... -
天神・大名事務所
47.9万円
管: 124,163円
32.25坪
天神駅 6分
天神駅徒歩6分!全面ガラス張りの美観大型オフィスビル。昭和通りに面したデザイン性...
-
天神・大名事務所
47.8912万円
管: 124,162円
32.25坪
天神駅 7分
敷地内駐車場有り。昭和通りに面した視認性抜群の大型オフィス。地下鉄天神駅から徒歩...
-
天神・大名事務所
76.89万円
管: 0円
34.95坪
西鉄福岡駅 5分
西鉄福岡駅徒歩5分の好機。OAフロア完備の35坪オフィス。天神のメインストリート...
-
天神・大名事務所
68.2704万円
管: 0円
34.48坪
赤坂駅 2分
赤坂駅直結!明治通り沿いの視認性抜群オフィス。地下鉄赤坂駅直結のため、雨の日でも...
-
天神・大名多用途
79.3661万円
管: 0円
31.36坪
天神駅 6分
福岡大名ガーデンシティ至近!視認性抜群ビル6階。天神駅徒歩6分、多くの人が行き交...
-
天神・大名多用途
72.336万円
管: 135,960円
32.85坪
西鉄福岡駅 8分
大名1丁目の好立地!美容サービス店相談可。国体道路沿いに面した大名1丁目の好立地...