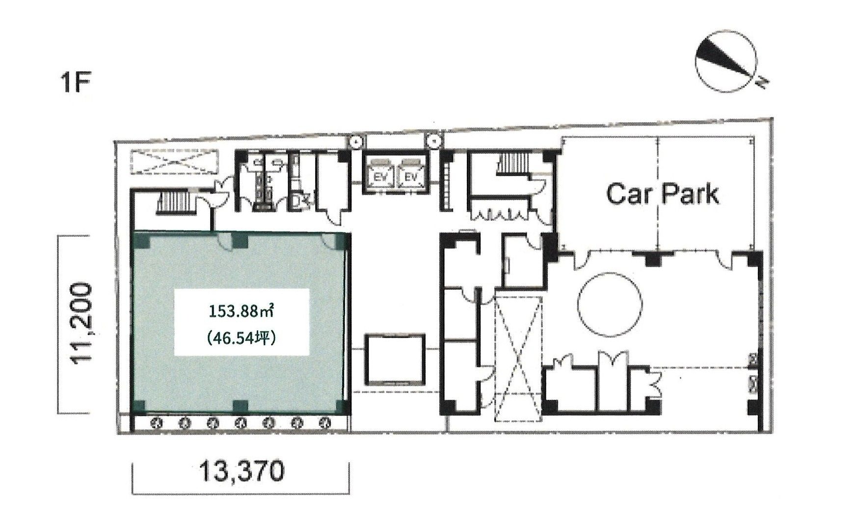
メットライフ天神リバーフロントビル 1F
天神南駅3分!リバーフロントのビル1階。
那珂川を望むリバーサイドエリアの1階物件です。
1階ならではのアクセスの良さは、頻繁な来客対応が必要な士業事務所や商品の魅力を伝えるショールーム兼オフィス等に最適です。
引渡しは2026年5月と先ですが、天神核心部の1階という極めて希少な区画を計画的に確保する好機です。
福岡県福岡市中央区天神4丁目1番32
- 賃料 :
- ¥819,104
- 面積 :
- 153.88㎡/46.55坪
- 相談可能業種 :
- オフィス
物件詳細情報
- 物件名 :
- メットライフ天神リバーフロントビル 1F
- 所在地 :
- 福岡県福岡市中央区天神4丁目1番32
- 最寄駅 :
- 地下鉄七隈線「天神南駅」 徒歩3分
地下鉄空港線「天神駅」 徒歩6分
西鉄天神大牟田線「西鉄福岡駅」 徒歩5分
- 相談可能業種 :
- オフィス
- 賃料 :
- ¥819,104
- 敷金 :
- 12ヶ月
- 礼金 :
- 0円
- 保証金 :
- 0円
- 引き渡し :
- 現況渡し
- 現況 :
- 居住中
- 引き渡し時期 :
- 期日指定 2026年05月01日
- 契約期間 :
- 2年
- 面積 :
- 153.88㎡/46.55坪
- 建物構造 :
- SRC
- 階建 :
- 地上7階建ての1階部分
- 築年月 :
- 1999年3月
- 駐車場 :
- 空き有り 38,500円~
- 設備 :
- エレベーター、電気
- 特記事項 :
- 飲食店不可
駐車場敷金:3ヶ月
- 取り引き態様 :
- 仲介先物
- 情報更新日 :
- 2026年04月14日
- 次回更新予定日 :
- 2026年05月14日
地図を見る
ストリートビューを見る
¥819,104 / 153.88㎡
条件が近い物件
-
天神北事務所
51.1467万円
管: 111,593円
42.27坪
天神駅 5分
バス停徒歩1分の好アクセス。天神の利便性を享受するビジネス拠点。地下鉄天神駅から...
-
天神北事務所
70.58万円
管: 141,158円
51.33坪
天神駅 9分
天神・赤坂徒歩圏内。那の津通り沿いの大型ビル。大型ビルならではの充実した設備が日...
-
天神北事務所
79.99万円
管: 0円
48.48坪
天神駅 6分
天神駅6分!約48坪をワンフロア独占。地下鉄天神駅徒歩6分、主要バス停「那の津口...
-
天神北事務所
47.916万円
管: 143,748円
43.56坪
天神駅 2分
天神駅徒歩2分!1フロア1社で叶える独立性と安心感。昭和通りに面した好立地で、説...
-
天神北事務所
75.5万円
管: 0円
45.76坪
天神駅 10分
那ノ津通り沿いのランドマークビル。ビジネスを支える充実設備。天神エリアでの拠点探...
-
天神北事務所
47.92万円
管: 143,748円
43.56坪
天神駅 5分
天神駅5分、昭和通り沿い。天井高2.5mの開放感。天神駅徒歩5分のお客様をご案内...