天神偕成ビル 1F
昭和通り沿い。視認性の高い1階約46坪の拠点。
天神駅と赤坂駅の中間に位置しアクセス抜群です。
1階エントランス横の区画で視認性が高く、企業のブランドを発信することができる好機です。
敷地内駐車場を確保できるため、フットワークを重視する営業拠点として高い利便性を誇ります。
福岡県福岡市中央区大名2丁目8番22
- 賃料 :
- ¥1,269,675
- 面積 :
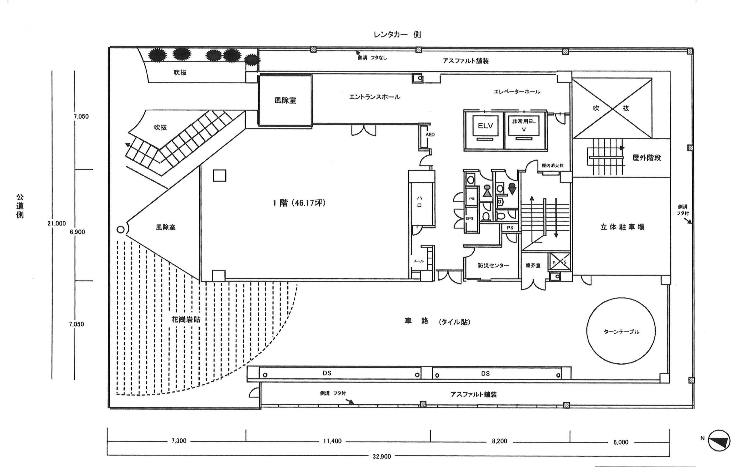
- 152.63㎡/46.17坪
- 相談可能業種 :
- オフィス
物件詳細情報
- 物件名 :
- 天神偕成ビル 1F
- 所在地 :
- 福岡県福岡市中央区大名2丁目8番22
- 最寄駅 :
- 地下鉄空港線「天神駅」 徒歩6分
地下鉄空港線「赤坂駅」 徒歩7分
西鉄天神大牟田線「西鉄福岡駅」 徒歩9分
- 相談可能業種 :
- オフィス
- 賃料 :
- ¥1,269,675
- 敷金 :
- 12ヶ月
- 礼金 :
- 0円
- 保証金 :
- 0円
- 引き渡し :
- 現況渡し
- 現況 :
- 空室
- 引き渡し時期 :
- 相談
- 契約期間 :
- 2年
- 面積 :
- 152.63㎡/46.17坪
- 建物構造 :
- SRC
- 階建 :
- 地上10階、地下1階建ての1階部分
- 築年月 :
- 1992年1月
- 駐車場 :
- 空き有り 33,000円~
- 設備 :
- エレベーター、電気
- 特記事項 :
- 駐車場敷金:3ヶ月
- 取り引き態様 :
- 仲介先物
- 情報更新日 :
- 2026年01月13日
- 次回更新予定日 :
- 2026年02月13日
地図を見る
ストリートビューを見る
¥1,269,675 / 152.63㎡
条件が近い物件
-
天神・大名事務所
106.16万円
管: 172,827円
44.89坪
天神南駅 2分
地下鉄昇降口直結!天神1丁目のランドマーク。大丸福岡天神店と一体になった知名度抜...
-
天神・大名事務所
95.38万円
管: 112,343円
46.87坪
赤坂駅 1分
地下鉄赤坂駅昇降口前!新築ランドマークビル。赤坂交差点の角地に佇む視認性の高いオ...
-
天神・大名多用途
132万円
管: 0円
44.99坪
赤坂駅 2分
赤坂駅2分!築浅テナントビル。2024年6月竣工の築浅ビル2階です。
... -
天神・大名多用途
134.992万円
管: 0円
47.20坪
天神駅 8分
天神西通り至近!築浅ハイグレードビル。西鉄福岡駅徒歩7分、天神大名ガーデンシティ...
-
天神・大名多用途
130.1256万円
管: 162,657円
49.29坪
天神駅 4分
天神駅4分!最高の視認性を誇る1階路面店。地下鉄天神駅徒歩4分、西鉄福岡駅も6分...
-
天神・大名多用途
74.8万円
管: 0円
45.68坪
西鉄福岡駅 5分
人気の大名1丁目!希少な3層メゾネットタイプ。活気溢れる大名1丁目、3つの駅が徒...
-
天神・大名多用途
414.645万円
管: 0円
50.26坪
天神駅 6分
大名ガーデンシティ至近。視認性抜群のスタイリッシュビル。天神駅徒歩6分、西通り沿...
-
天神・大名事務所
100.66万円
管: 0円
48.16坪
天神駅 5分
明治通り沿い天神駅徒歩5分。企業の永続的な発展を支えるオフィスビル。天神の中心、...