エリアント大名 7F
大名・国体道路沿い。2025年新築の最上階。
「国体道路沿い」という圧倒的な知名度、来客への案内がスムーズで企業のブランディングに直結する立地です。
何色にも染まっていないスケルトン渡しで、ブランドの世界観を隅々まで表現できます。
最上階というロケーションが、大人の隠れ家としての特別感を演出します。
福岡県福岡市中央区大名1丁目1番8
- 賃料 :
- ¥694,232
- 面積 :
- 90.71㎡/27.43坪
- 相談可能業種 :
- 軽飲食、飲食全般、美容、医療・クリニック、小売り・物販、サービス
物件詳細情報
- 物件名 :
- エリアント大名 7F
- 所在地 :
- 福岡県福岡市中央区大名1丁目1番8
- 最寄駅 :
- 西鉄天神大牟田線「西鉄福岡駅」 徒歩8分
地下鉄空港線「天神駅」 徒歩9分
地下鉄七隈線「薬院大通駅」 徒歩12分
- 相談可能業種 :
- 軽飲食飲食全般美容医療・クリニック小売り・物販サービス
- 賃料 :
- ¥694,232
- 敷金 :
- 12ヶ月
- 礼金 :
- 0円
- 保証金 :
- 0円
- 引き渡し :
- スケルトン
- 現況 :
- 未完成
- 引き渡し時期 :
- 相談
- 契約期間 :
- 3年
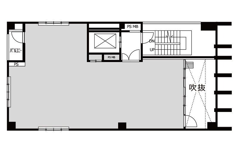
- 面積 :
- 90.71㎡/27.43坪
- 建物構造 :
- 鉄骨造
- 階建 :
- 地上7階建ての7階部分
- 築年月 :
- 2025年6月
- バルコニー :
- 有り
- 駐車場 :
- 無し
- 設備 :
- エレベーター、電気
- 取り引き態様 :
- 仲介先物
- 情報更新日 :
- 2026年02月24日
- 次回更新予定日 :
- 2026年03月24日
地図を見る
ストリートビューを見る
¥694,232 / 90.71㎡
条件が近い物件
-
天神・大名多用途
49.973万円
管: 107,085円
32.45坪
天神駅 4分
天神駅徒歩4分!機動力と快適性を両立した天神中心部のオフィス。西鉄福岡駅や天神南...
-
天神・大名多用途
71.54万円
管: 0円
29.56坪
西鉄福岡駅 7分
天神西通りに面す好視認性!天神の中心でビジネスを加速させる一室。西鉄福岡駅から徒...
-
天神・大名多用途
145.233万円
管: 0円
29.34坪
天神駅 6分
天神駅6分!テナントビル2階の約29坪空間。天神エリアの商業中心地、岩田屋本館の...
-
天神・大名店舗
41.71万円
管: 89,370円
29.79坪
天神駅 3分
天神駅3分!お洒落な内装の居抜き物件。天神エリアで大変人通りが多い昭和通りに面す...
-
天神・大名多用途
36.696万円
管: 33,000円
23.38坪
赤坂駅 4分
赤坂駅4分!新築テナントビル。赤坂駅から徒歩4分、明治通りから一本入った落ち着い...
-
天神・大名多用途
22万円
管: 12,300円
24.85坪
西鉄福岡駅 4分
西鉄福岡駅4分!国体道路沿いバス停前の視認性抜群な24坪拠点。3路線利用可能なマ...
-
天神・大名多用途
44.6457万円
管: 33,000円
25.05坪
赤坂駅 4分
赤坂駅4分。採光あふれるガラス張りの築浅ビル。自由な空間を創るスケルトン。地下鉄...
-
天神・大名多用途
41.7956万円
管: 59,708円
27.14坪
赤坂駅 8分
飲食・美容相談可。造作譲渡で継承する27坪のサロン。大名1丁目のランドマーク的な...