エリアント大名 2F

人気の大名1丁目!国体道路沿いの新築テナントビル。

天神・大名エリアのメインストリート、国体道路沿いに誕生した2025年竣工の新築ビルです。
クリニックやサービス店舗、軽飲食まで幅広く相談でき、周辺の活気溢れる商業環境が集客を強力にバックアップします。

福岡県福岡市中央区大名1丁目1番8

賃料
¥838,200
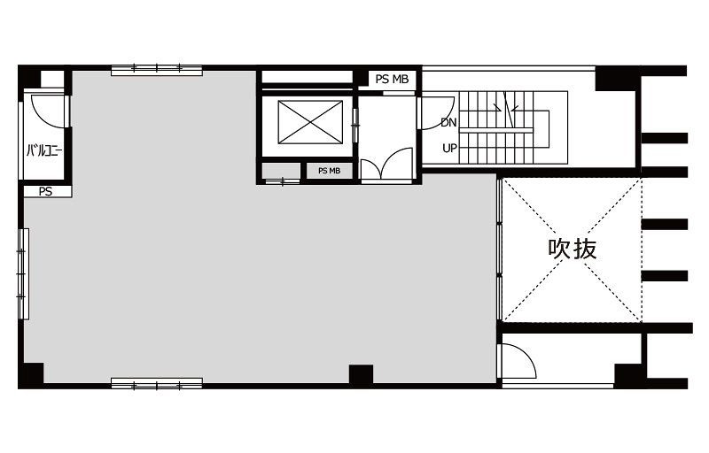
面積
83.97㎡/25.40坪
相談可能業種
軽飲食、飲食全般、美容、医療・クリニック、小売り・物販、サービス、オフィス

物件詳細情報

物件名 :
エリアント大名 2F
所在地 :
福岡県福岡市中央区大名1丁目1番8
最寄駅 :
西鉄天神大牟田線「西鉄福岡駅」 徒歩8分
地下鉄空港線「天神駅」 徒歩9分
地下鉄七隈線「天神南駅」 徒歩7分
相談可能業種 :
軽飲食飲食全般美容医療・クリニック小売り・物販サービスオフィス
賃料 :
¥838,200
敷金 :
12ヶ月
礼金 :
0円
保証金 :
0円
引き渡し :
スケルトン
現況 :
空室
引き渡し時期 :
即時
契約期間 :
3年
面積 :
83.97㎡/25.40坪
建物構造 :
鉄骨造
階建 :
地上7階建ての2階部分
築年月 :
2025年6月
バルコニー :
有り
駐車場 :
無し
設備 :
エレベーター、給湯、電気、水道
特記事項 :
福岡市福祉のまちづくり条例に伴い役所との事前協議必要
取り引き態様 :
仲介先物
情報更新日 :
2026年02月11日
次回更新予定日 :
2026年03月11日

地図を見る

ストリートビューを見る

条件が近い物件