綾杉ビル 3F

アクロス福岡前!約172坪の大型店舗事務所。

明治通り沿い、天神一丁目という一等地に建ち最高の視認性を誇るオフィスビルです。
地下鉄空港線・西鉄・地下鉄七隈線の3駅へ徒歩5~8分という抜群のアクセスで従業員の通勤もスムーズです。
約172坪の広さを活かし、企業の福岡本社や大型支店に最適です。

福岡県福岡市中央区天神1丁目15番6

賃料
¥3,790,820
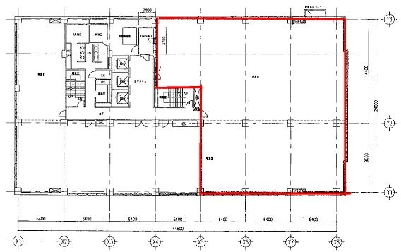
面積
569.62㎡/172.31坪
相談可能業種
軽飲食、飲食全般、美容、医療・クリニック、小売り・物販、サービス、オフィス

物件詳細情報

物件名 :
綾杉ビル 3F
所在地 :
福岡県福岡市中央区天神1丁目15番6
最寄駅 :
地下鉄七隈線「天神南駅」 徒歩7分
地下鉄空港線「天神駅」 徒歩5分
西鉄天神大牟田線「西鉄福岡駅」 徒歩8分
相談可能業種 :
軽飲食飲食全般美容医療・クリニック小売り・物販サービスオフィス
賃料 :
¥3,790,820
敷金 :
12ヶ月
礼金 :
0円
保証金 :
0円
引き渡し :
現況渡し
現況 :
居住中
引き渡し時期 :
相談
賃貸借区分 :
定期借家
契約期間 :
2年
面積 :
569.62㎡/172.31坪
建物構造 :
SRC
階建 :
地上8階、地下1階建ての3階部分
築年月 :
1989年8月
駐車場 :
空き有り
設備 :
エレベーター、エアコン、電気
特記事項 :
24時間セキュリティ
共用部に男女別トイレ有り
再契約未定
取り引き態様 :
仲介先物
情報更新日 :
2026年05月01日
次回更新予定日 :
2026年06月01日

地図を見る

ストリートビューを見る