日之出天神ビルディング 7F
天神駅4分!機能と快適さを備えた天神真ん中の拠点。
福岡ビジネスの中心地・天神1丁目、昭和通り沿いに位置する大型オフィスビルです。
地下1階にはリフレッシュルームがあり、従業員の休憩スペースとして活用可能です。
また大型の荷搬用エレベーターも1基装備されており、物流や搬入出が多い企業様にとっても非常に使い勝手の良い環境が整っています。
福岡県福岡市中央区天神1丁目12番20
- 賃料 :
- ¥1,102,300
- 管理費 :
- ¥233,811
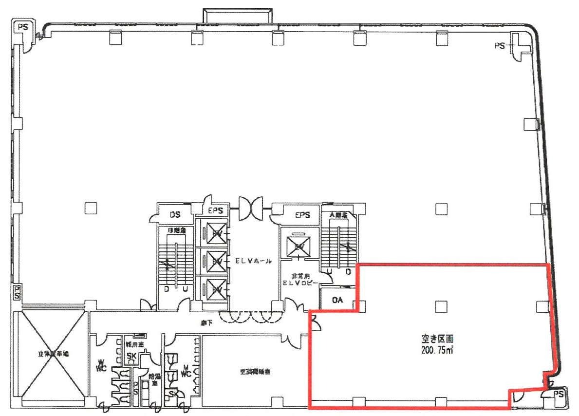
- 面積 :
- 200.76㎡/60.73坪
- 相談可能業種 :
- オフィス
物件詳細情報
- 物件名 :
- 日之出天神ビルディング 7F
- 所在地 :
- 福岡県福岡市中央区天神1丁目12番20
- 最寄駅 :
- 地下鉄空港線「天神駅」 徒歩4分
西鉄天神大牟田線「西鉄福岡駅」 徒歩7分
地下鉄七隈線「天神南駅」 徒歩7分
- 相談可能業種 :
- オフィス
- 賃料 :
- ¥1,102,300
- 共益費 :
- ¥233,811
- 敷金 :
- 12ヶ月
- 礼金 :
- 0円
- 保証金 :
- 0円
- 精算方式 :
- 実費
- 引き渡し :
- 事務所仕上げ
- 現況 :
- 空室
- 引き渡し時期 :
- 即時
- 賃貸借区分 :
- 定期借家
- 契約期間 :
- 2年
- 面積 :
- 200.76㎡/60.73坪
- 建物構造 :
- SRC
- 階建 :
- 地上10階、地下2階建ての7階部分
- 築年月 :
- 1987年8月
- 駐車場 :
- 空き有り 38,500円~
- 設備 :
- エレベーター、エアコン、電気
- 特記事項 :
- OAフロア
共用部に男女別トイレ有り
B1Fにリフレッシュルーム有り
24時間セキュリティ
機械警備にて24時間出入り可能
大型荷搬用EV1基装備
契約年数・再契約相談可
駐車場:立体駐車場 40台 平面駐車場 12台
駐車場敷金:2ヶ月
空き状況は随時お問い合わせ下さい。
- 取り引き態様 :
- 仲介先物
- 情報更新日 :
- 2026年01月20日
- 次回更新予定日 :
- 2026年02月20日
地図を見る
ストリートビューを見る
¥1,102,300 / 200.76㎡
条件が近い物件
-
天神・大名多用途
550万円
管: 0円
60.48坪
西鉄福岡駅 6分
天神駅3分!国体道路沿い、飲食・サービス業に最適なテラス付プレミアム区画!西鉄福...
-
天神・大名事務所
133.606万円
管: 0円
60.73坪
天神駅 2分
天神駅2分!昭和通り沿いの大型オフィスビル。給湯室やトイレが共用部に配置されてい...
-
天神・大名多用途
100.0032万円
管: 0円
56.82坪
赤坂駅 6分
赤坂駅6分!築浅テナントビル。人気の大名1丁目アドレス、人通りも多く活気溢れる立...
-
天神・大名多用途
100.0032万円
管: 0円
56.82坪
赤坂駅 6分
赤坂駅6分!スタイリッシュな築浅ビル。賃料見直しました!
2020... -
賃料相談
管: ---円
62.62坪
天神駅 1分
詳細は登録後にご覧いただけます
-
天神・大名多用途
145.2242万円
管: 0円
60.02坪
天神駅 8分
天神西通り至近の好立地!ハイグレード築浅ビル。西鉄天神大牟田線福岡(天神)駅から...
-
天神・大名多用途
106.2534万円
管: 0円
56.81坪
赤坂駅 6分
赤坂駅6分。大名の築浅デザイナーズビルで新たなステージへ。オフィス利用はもちろん...