グレースイン赤坂 8F-2
赤坂駅徒歩1分!赤坂エリアの利便性を享受する実力派ビル。
地下鉄赤坂駅から徒歩1分の超駅近ロケーションで、大正通りに面した視認性の高いビルです。
約20.78坪の使い勝手の良いサイズに、個別空調や男女別トイレなど現代のオフィスに欠かせない設備が充実しています。
光ファイバー対応や24時間警備も完備されIT企業から士業、各種事務所まで幅広く対応可能です。
福岡県福岡市中央区赤坂1丁目10番23
- 賃料 :
- ¥298,000
- 面積 :
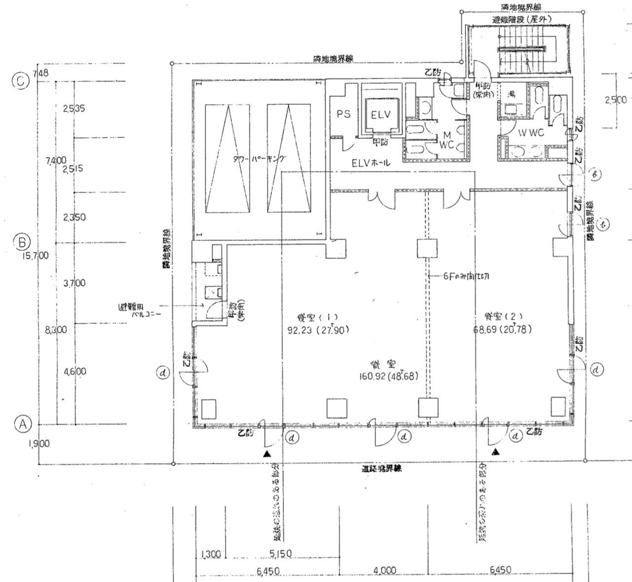
- 68.69㎡/20.78坪
- 相談可能業種 :
- オフィス
物件詳細情報
- 物件名 :
- グレースイン赤坂 8F-2
- 所在地 :
- 福岡県福岡市中央区赤坂1丁目10番23
- 最寄駅 :
- 地下鉄空港線「赤坂駅」 徒歩1分
地下鉄空港線「天神駅」 徒歩13分
西鉄天神大牟田線「西鉄福岡駅」 徒歩14分
- 相談可能業種 :
- オフィス
- 賃料 :
- ¥298,000
- 敷金 :
- 6ヶ月
- 礼金 :
- 0円
- 保証金 :
- 0円
- 精算方式 :
- 実費
- 引き渡し :
- 現況渡し
- 現況 :
- 居住中
- 引き渡し時期 :
- 予定 2026年8月中旬
- 契約期間 :
- 2年
- 面積 :
- 68.69㎡/20.78坪
- 建物構造 :
- SRC
- 階建 :
- 地上8階建ての8階部分
- 築年月 :
- 1992年11月
- 駐車場 :
- 空き無し 24,200円~
- 設備 :
- エレベーター、エアコン、電気
- 特記事項 :
- 飲食店不可
24時間セキュリティ
ビル警備
光ファイバー
共用部に男女別トイレ有り
町費:年額 3,600円
退去予定日:2026年07月31日
立体駐車場完備
駐車場敷金:1ヶ月 22,000円
空き状況は随時お問い合わせ下さい。
- 取り引き態様 :
- 仲介先物
- 情報更新日 :
- 2026年02月28日
- 次回更新予定日 :
- 2026年03月28日
地図を見る
ストリートビューを見る
¥298,000 / 68.69㎡
条件が近い物件
-
赤坂・舞鶴多用途
24.33万円
管: 11,583円
21.06坪
天神駅 8分
【天神・親富孝通り沿い】天神駅徒歩8分!視認性とプライバシーを両立したビジネス拠...
-
赤坂・舞鶴多用途
30.8055万円
管: 41,074円
18.68坪
赤坂駅 7分
舞鶴公園そば。光と開放感に満ちた赤坂の19坪。2020年築の築浅デザイナーズビル...
-
赤坂・舞鶴多用途
29.3794万円
管: 49,566円
15.03坪
赤坂駅 6分
赤坂駅6分!ガラスウォールの新築2階。ガラス張りのスタイリッシュな外観は赤坂エリ...
-
赤坂・舞鶴多用途
48.906万円
管: 137,940円
25.65坪
赤坂駅 1分
赤坂駅徒歩1分!AI標準装備のコンセプトオフィス最上階。2026年2月にフルリノ...
-
赤坂・舞鶴多用途
34.28万円
管: 0円
22.26坪
赤坂駅 4分
赤坂駅4分・天神徒歩圏。昭和通り沿い・約22坪で存在感を放つ。地下鉄赤坂駅から徒...
-
赤坂・舞鶴事務所
48.906万円
管: 137,940円
25.65坪
赤坂駅 1分
地下鉄赤坂駅徒歩1分!未来を創るコンセプトオフィス。2025年10月ビル内外装フ...
-
赤坂・舞鶴事務所
37.46万円
管: 0円
22.70坪
赤坂駅 4分
昭和通り沿い赤坂駅徒歩3分!視認性抜群の1階路面区画。赤坂駅徒歩3分の1階路面と...
-
赤坂・舞鶴事務所
20.17万円
管: 40,326円
18.33坪
赤坂駅 5分
【即入居可】赤坂駅徒歩5分!1フロア1テナントの快適オフィス。
<...