福商会館 4F
視認性・利便性抜群!大名エリアの希少な大型区画。
天神・赤坂エリア徒歩圏内の好立地で、周辺は人気の飲食店やアパレルショップ、オフィスが密集する活気あふれるエリアです。
事務所としてはもちろん、ショールームや美容・フィットネスなどのサービス店舗としてもおすすめです。
福岡県福岡市中央区大名1丁目12番57
- 賃料 :
- ¥986,189
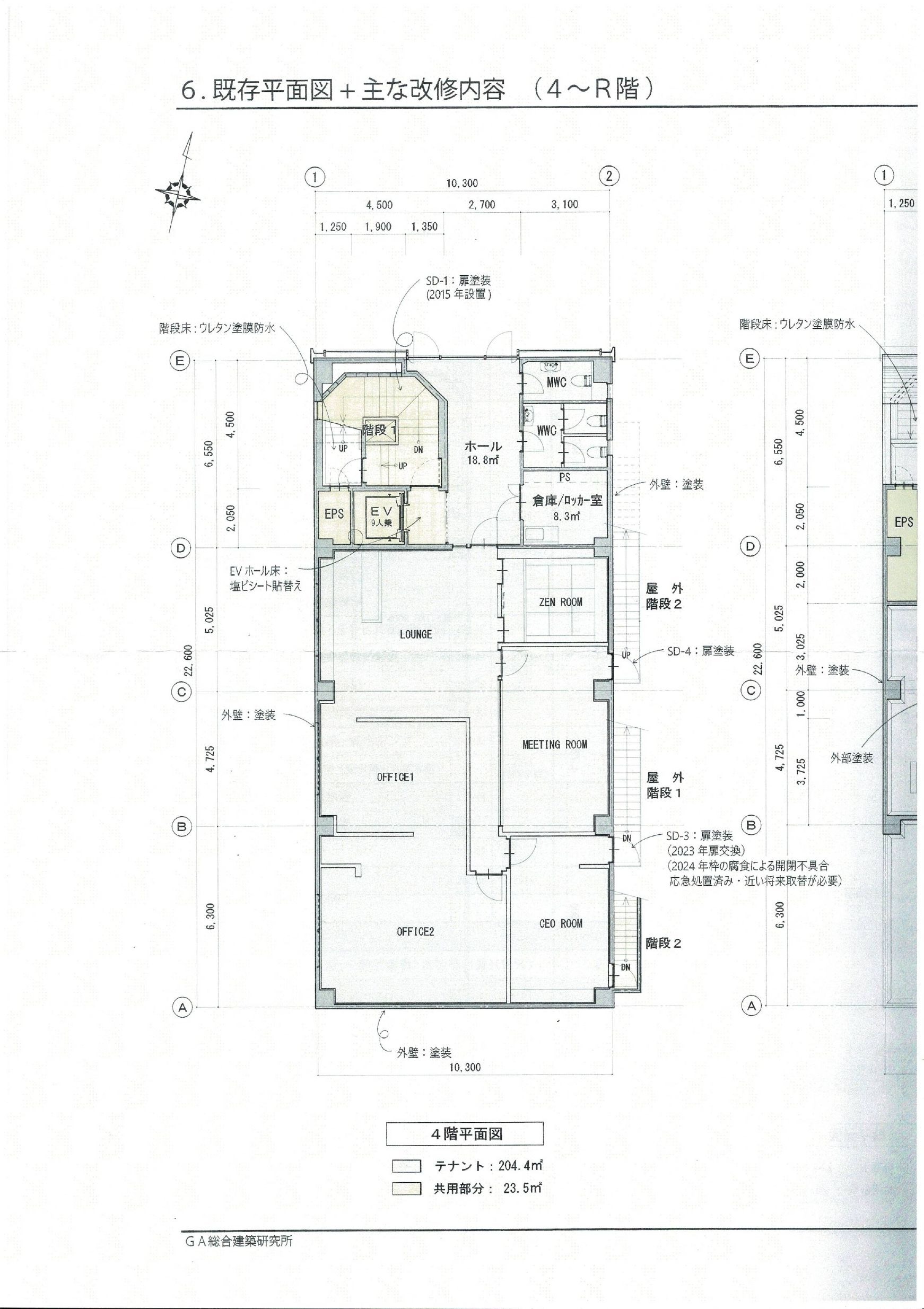
- 面積 :
- 204.28㎡/61.79坪
- 相談可能業種 :
- 美容、医療・クリニック、小売り・物販、サービス、オフィス
物件詳細情報
- 物件名 :
- 福商会館 4F
- 所在地 :
- 福岡県福岡市中央区大名1丁目12番57
- 最寄駅 :
- 地下鉄空港線「天神駅」 徒歩7分
西鉄天神大牟田線「西鉄福岡駅」 徒歩6分
地下鉄空港線「赤坂駅」 徒歩7分
- 相談可能業種 :
- 美容医療・クリニック小売り・物販サービスオフィス
- 賃料 :
- ¥986,189
- 敷金 :
- 6ヶ月
- 礼金 :
- 0円
- 保証金 :
- 0円
- 精算方式 :
- 実費
- 引き渡し :
- 現況渡し
- 現況 :
- 居住中
- 引き渡し時期 :
- 相談
- 賃貸借区分 :
- 定期借家
- 契約期間 :
- 10年
- 面積 :
- 204.28㎡/61.79坪
- 建物構造 :
- RC
- 階建 :
- 地上5階建ての4階部分
- 築年月 :
- 1980年6月
- 駐車場 :
- 無し
- 設備 :
- エレベーター、トイレ、電気、水道
- 特記事項 :
- 飲食店不可
事務所やサービス店舗、クリニックなどご相談可
- 取り引き態様 :
- 仲介先物
- 情報更新日 :
- 2026年04月25日
- 次回更新予定日 :
- 2026年05月25日
地図を見る
ストリートビューを見る
¥986,189 / 204.28㎡
条件が近い物件
-
天神・大名多用途
115.5473万円
管: 0円
61.78坪
天神駅 7分
大名一等地の61坪!開放感あふれる空間で理想の大型サロンを展開。天神駅徒歩7分の...
-
天神・大名事務所
98.72万円
管: 197,406円
59.82坪
赤坂駅 4分
明治通り沿いの好立地。赤坂駅徒歩4分、信頼を築くオフィスビル。
2... -
天神・大名多用途
98.6189万円
管: 0円
61.79坪
天神駅 7分
視認性・利便性抜群!大名エリアの60坪超の開放的な空間。天神・赤坂エリア徒歩圏内...
-
天神・大名多用途
144.0329万円
管: 0円
56.93坪
西鉄福岡駅 5分
【造作譲渡金0円・居抜き】天神徒歩圏の好立地!1階スタバが目印のビルでブランド力...
-
天神・大名事務所
106.25万円
管: 0円
56.82坪
赤坂駅 8分
赤坂駅徒歩8分!大名の築浅ビル1フロア1社の贅沢な56坪。周辺にはコンビニや主要...
-
天神・大名多用途
550万円
管: 0円
60.48坪
西鉄福岡駅 6分
天神駅3分!国体道路沿い、飲食・サービス業に最適なテラス付プレミアム区画!西鉄福...
-
天神・大名事務所
133.606万円
管: 0円
60.73坪
天神駅 2分
天神駅2分!昭和通り沿いの大型オフィスビル。給湯室やトイレが共用部に配置されてい...
-
天神・大名多用途
176.4048万円
管: 0円
61.68坪
天神駅 8分
西鉄福岡(天神)駅徒歩6分の好立地!2020年竣工の築浅デザインビル。天神西通り...