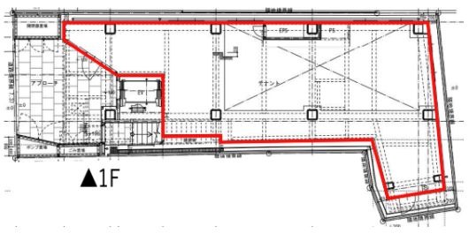
(仮称)MGH天神2丁目 1F
西鉄福岡駅徒歩3分!新築1階路面のフラッグシップ。
近隣に高級ブランドが集結する天神エリアでも屈指の洗練されたロケーションです。
全面ガラス張りのスタイリッシュな外観は視認性が高く、通りを歩く感度の高い層へ強力にアピールできるため高い集客力が期待できます。
福岡県福岡市中央区天神2丁目48
- 賃料 :
- ¥1,699,500
- 面積 :
- 102.17㎡/30.91坪
- 相談可能業種 :
- 軽飲食、飲食全般、美容、医療・クリニック、小売り・物販、サービス、オフィス
物件詳細情報
- 物件名 :
- (仮称)MGH天神2丁目 1F
- 所在地 :
- 福岡県福岡市中央区天神2丁目48
- 最寄駅 :
- 西鉄天神大牟田線「西鉄福岡駅」 徒歩3分
地下鉄七隈線「天神南駅」 徒歩5分
地下鉄空港線「天神駅」 徒歩8分
- 相談可能業種 :
- 軽飲食飲食全般美容医療・クリニック小売り・物販サービスオフィス
- 賃料 :
- ¥1,699,500
- 敷金 :
- 10ヶ月
- 礼金 :
- 0円
- 保証金 :
- 0円
- 精算方式 :
- 実費
- 引き渡し :
- スケルトン
- 現況 :
- 未完成
- 引き渡し時期 :
- 予定 2026年9月上旬
- 賃貸借区分 :
- 定期借家
- 契約期間 :
- 5年
- 面積 :
- 102.17㎡/30.91坪
- 建物構造 :
- 鉄骨造
- 階建 :
- 地上8階建ての1階部分
- 築年月 :
- 2026年8月
- 駐車場 :
- 無し
- 設備 :
- エレベーター、給湯、電気、水道
- 特記事項 :
- 飲食は業種により相談可
契約期間要相談
保証会社加入義務有り
表示金額は税込表示となります。
敷金は税別価格を基準に計算ください。
図面・写真等現況と異なる場合は現況を優先いたします。
- 取り引き態様 :
- 仲介先物
- 情報更新日 :
- 2026年04月29日
- 次回更新予定日 :
- 2026年05月29日
地図を見る
ストリートビューを見る
¥1,699,500 / 102.17㎡
条件が近い物件
-
天神・大名店舗
38.8872万円
管: 97,218円
29.46坪
赤坂駅 8分
【飲食店可】大名1丁目の角地。デザイン性の高い外観でブランド力を向上。
-
天神・大名事務所
47.9万円
管: 124,163円
32.25坪
天神駅 6分
天神駅徒歩6分!全面ガラス張りの美観大型オフィスビル。昭和通りに面したデザイン性...
-
天神・大名事務所
47.8912万円
管: 124,162円
32.25坪
天神駅 7分
敷地内駐車場有り。昭和通りに面した視認性抜群の大型オフィス。地下鉄天神駅から徒歩...
-
天神・大名事務所
76.89万円
管: 0円
34.95坪
西鉄福岡駅 5分
西鉄福岡駅徒歩5分の好機。OAフロア完備の35坪オフィス。天神のメインストリート...
-
天神・大名多用途
68.4618万円
管: 0円
28.30坪
西鉄福岡駅 3分
西鉄福岡駅徒歩3分!天神2丁目の新築ランドマークビル。2026年8月竣工予定の新...
-
天神・大名多用途
72.3338万円
管: 0円
29.92坪
西鉄福岡駅 3分
西鉄福岡駅徒歩3分!天神2丁目の新築ランドマークビル。2026年8月竣工予定の新...
-
天神・大名多用途
65.0012万円
管: 0円
26.87坪
西鉄福岡駅 3分
西鉄福岡駅徒歩3分!天神2丁目の新築ランドマークビル。2026年8月末竣工予定、...
-
天神・大名多用途
65.0012万円
管: 0円
26.87坪
西鉄福岡駅 3分
西鉄福岡駅徒歩3分!天神2丁目の新築ランドマークビル。2026年8月末竣工予定、...