アントゥール薬院 203
薬院駅徒歩5分!視認性と機動力に優れた24坪オフィス。
西鉄天神大牟田線薬院駅から徒歩5分、地下鉄七隈線も利用可能な福岡市内の移動に極めて便利な立地です。
薬院1丁目の活気あるビジネスエリアに位置し、来客への案内もスムーズです。
企業の信頼性を高める拠点として、また従業員の通勤満足度向上にも寄与する一軒です。
福岡県福岡市中央区薬院1丁目15番13
- 賃料 :
- ¥297,000
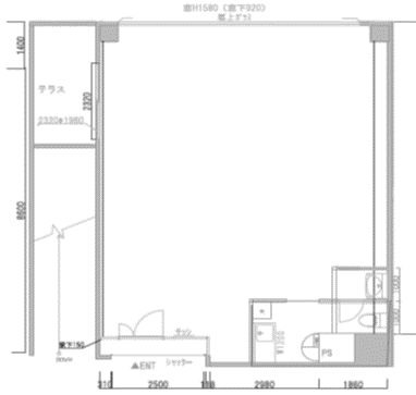
- 面積 :
- 80㎡/24.2坪
- 相談可能業種 :
- 軽飲食、飲食全般、美容、医療・クリニック、小売り・物販、サービス、オフィス
物件詳細情報
- 物件名 :
- アントゥール薬院 203
- 所在地 :
- 福岡県福岡市中央区薬院1丁目15番13
- 最寄駅 :
- 西鉄天神大牟田線「薬院駅」 徒歩5分
地下鉄七隈線「薬院大通駅」 徒歩8分
地下鉄七隈線「天神南駅」 徒歩10分
- 相談可能業種 :
- 軽飲食飲食全般美容医療・クリニック小売り・物販サービスオフィス
- 賃料 :
- ¥297,000
- その他費用 :
- 町費:500円 雑費:500円
- 敷金 :
- 10ヶ月
- 礼金 :
- 0円
- 保証金 :
- 0円
- 引き渡し :
- 事務所仕上げ
- 現況 :
- 空室
- 引き渡し時期 :
- 即時
- 賃貸借区分 :
- 普通借家
- 契約期間 :
- 2年
- 面積 :
- 80㎡/24.2坪
- 建物構造 :
- RC
- 階建 :
- 地上15階建ての2階部分
- 築年月 :
- 2002年3月
- バルコニー :
- 有り
- 駐車場 :
- 空き有り
- 設備 :
- オートロック、エレベーター、防犯カメラ、エアコン、給湯、トイレ、電気、水道
- 特記事項 :
- 以下の設備は住戸専用なのでこちらの区画の利用は出来ません。
・宅配ボックス・モニター付オートロック・エレベーター ・自転車駐輪 ・専用ゴミ置き場
更新事務手数料:22,000円
- 取り引き態様 :
- 仲介先物
- 情報更新日 :
- 2026年04月14日
- 次回更新予定日 :
- 2026年05月14日
地図を見る
ストリートビューを見る
¥297,000 / 80㎡
条件が近い物件
-
薬院・平尾多用途
31.944万円
管: 17,160円
19.36坪
西鉄平尾駅 3分
平尾駅徒歩3分・筑肥新道沿い。視認性抜群の1階路面テナント。西鉄平尾駅から徒歩3...
-
薬院・平尾多用途
49.5万円
管: 0円
26.42坪
薬院大通駅 6分
【警固1丁目】1階・2階あわせて26坪。隠れ家サロンやスタジオに最適な2階建て物...
-
薬院・平尾多用途
39.6万円
管: 27,500円
29.95坪
赤坂駅 7分
けやき通り沿い・最上階区画。営業拠点や拡張移転に最適な29坪。福岡の文化と緑が融...
-
薬院・平尾店舗
15.95万円
管: 500円
24.17坪
薬院大通駅 5分
薬院大通駅徒歩5分!隠れ家的カフェBAR居抜き。福岡屈指の人気エリア、薬院3丁目...
-
薬院・平尾多用途
53.4万円
管: 0円
29.47坪
薬院大通駅 5分
薬院大通駅5分の築浅ハイグレード物件!視認性抜群の2階30坪テナント。薬院公園の...
-
薬院・平尾多用途
27.5万円
管: 0円
22.33坪
赤坂駅 9分
赤坂駅徒歩圏内。警固2丁目の約22坪空間。警固本通りに面したビルの2階区画です。...
-
薬院・平尾多用途
39.9168万円
管: 0円
22.68坪
西鉄福岡駅 11分
警固・上人橋通りの象徴。天神徒歩圏。人気の「上人橋通り」沿いに位置し、集合看板で...
-
薬院・平尾店舗
49.5万円
管: 0円
29.95坪
薬院大通駅 6分
薬院・警固エリアの1階路面店!約30坪の広々とした居酒屋居抜き。七隈線薬院大通駅...