赤坂セントラルビル 9F
2024年1月竣工の最新鋭ビル。赤坂交差点の角地、最上階。
地下鉄赤坂駅の出口から徒歩1分の最高のロケーション。
タッチレスエレベーターや24時間換気センサー付き自動空調など、最新設備を多数搭載したオフィスビルです。
エネルギー効率の高いLow-E複層ガラスを採用しており、一年中快適な執務環境を保ちます。
福岡県福岡市中央区大名2丁目12番12
- 賃料 :
- ¥522,792
- 管理費 :
- ¥98,906
- 面積 :
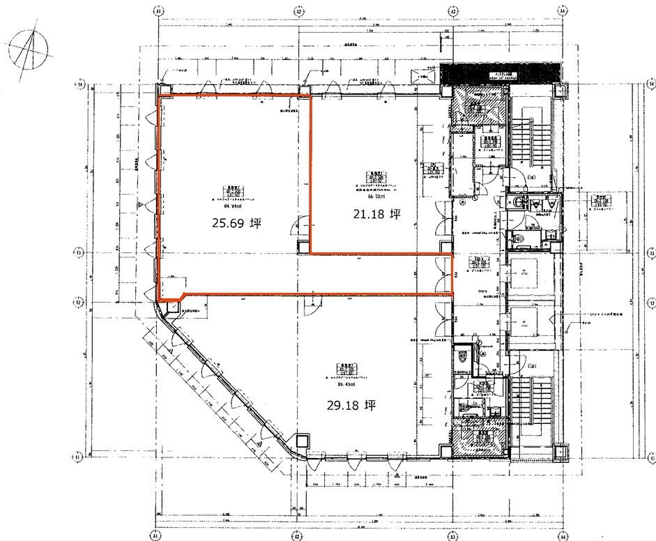
- 84.93㎡/25.69坪
- 相談可能業種 :
- オフィス
物件詳細情報
- 物件名 :
- 赤坂セントラルビル 9F
- 所在地 :
- 福岡県福岡市中央区大名2丁目12番12
- 最寄駅 :
- 地下鉄空港線「赤坂駅」 徒歩1分
地下鉄空港線「天神駅」 徒歩11分
西鉄天神大牟田線「西鉄福岡駅」 徒歩13分
- 相談可能業種 :
- オフィス
- 賃料 :
- ¥522,792
- 共益費 :
- ¥98,906
- 敷金 :
- 12ヶ月
- 礼金 :
- 0円
- 保証金 :
- 0円
- 引き渡し :
- 現況渡し
- 現況 :
- 空室
- 引き渡し時期 :
- 即時
- 契約期間 :
- 2年
- 面積 :
- 84.93㎡/25.69坪
- 建物構造 :
- 鉄骨造
- 階建 :
- 地上9階建ての9階部分
- 築年月 :
- 2024年1月
- 駐車場 :
- 空き有り 25,000円~
- 設備 :
- エレベーター、エアコン、電気
- 特記事項 :
- 24時間換気センサー付き自動空調システム
タッチレスエレベーター
Low-E複層ガラス
駐車場は立体駐車場で契約時に敷金2か月分が必要となります。
- 取り引き態様 :
- 仲介先物
- 情報更新日 :
- 2025年12月06日
- 次回更新予定日 :
- 2026年01月06日
地図を見る
ストリートビューを見る
¥522,792 / 84.93㎡
条件が近い物件
-
天神・大名事務所
29.87万円
管: 0円
22.63坪
天神駅 4分
天神駅4分!日本銀行前の視認性良好オフィス。明治通り沿い、日本銀行前という最高の...
-
天神・大名多用途
38.6342万円
管: 0円
20.66坪
天神駅 4分
天神駅4分・人気の大名エリア。約20坪の洗練空間でブランドを創る。天神駅から徒歩...
-
天神・大名多用途
41.7956万円
管: 59,708円
27.14坪
赤坂駅 8分
飲食・美容相談可。造作譲渡で継承する27坪のサロン。大名1丁目のランドマーク的な...
-
天神・大名多用途
52.998万円
管: 112,420円
29.21坪
西鉄福岡駅 9分
天神徒歩圏。看板掲出可・大名の2階。トレンドの発信地「大名1丁目」のアドレスは、...
-
天神・大名多用途
83.82万円
管: 0円
25.40坪
西鉄福岡駅 8分
人気の大名1丁目!国体道路沿いの新築テナントビル。2025年6月完成予定の新築ビ...
-
天神・大名多用途
69.4298万円
管: 0円
28.69坪
天神駅 6分
大名ガーデンシティ至近!約29坪の好立地テナント。天神駅徒歩6分、多くの人が行き...
-
天神・大名多用途
35.97万円
管: 89,760円
27.23坪
赤坂駅 2分
2026年春入居可!赤坂駅2分の好立地。赤坂駅徒歩2分、天神エリアも徒歩圏内とい...
-
天神・大名多用途
19.8万円
管: 0円
23.65坪
天神駅 8分
岩田屋徒歩1分!大名2丁目の特等地多目的テナント。岩田屋本館から徒歩1分、旧大名...