福岡興銀ビル 5F
明治通り沿い天神駅徒歩5分。企業の信頼を築く一等地オフィスビル。
アクロス福岡に隣接する天神1丁目の伝統的なビジネスエリアです。
お客様も従業員もアクセスしやすい天神の中心地。
都心部では希少な駐車場も完備しており、ビジネスの機動力を高めます。
福岡県福岡市中央区天神1丁目13番2
- 賃料 :
- ¥518,000
- 面積 :
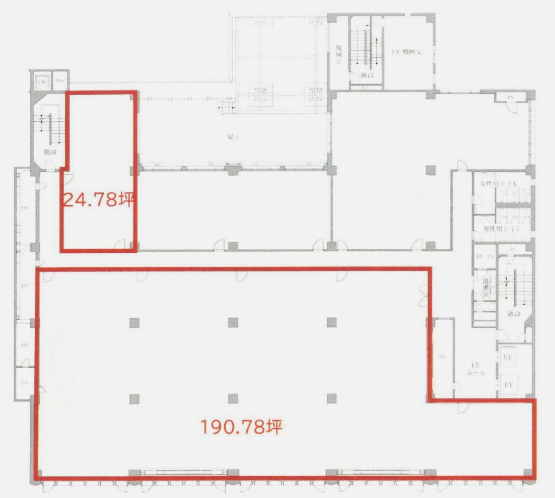
- 81.92㎡/24.78坪
- 相談可能業種 :
- オフィス
物件詳細情報
- 物件名 :
- 福岡興銀ビル 5F
- 所在地 :
- 福岡県福岡市中央区天神1丁目13番2
- 最寄駅 :
- 地下鉄空港線「天神駅」 徒歩5分
西鉄天神大牟田線「西鉄福岡駅」 徒歩7分
地下鉄七隈線「天神南駅」 徒歩7分
- 相談可能業種 :
- オフィス
- 賃料 :
- ¥518,000
- 敷金 :
- 12ヶ月
- 礼金 :
- 0円
- 保証金 :
- 0円
- 精算方式 :
- 実費
- 引き渡し :
- 事務所仕上げ
- 現況 :
- 空室
- 引き渡し時期 :
- 即時
- 賃貸借区分 :
- 定期借家
- 契約期間 :
- 3年
- 面積 :
- 81.92㎡/24.78坪
- 建物構造 :
- SRC
- 階建 :
- 地上9階、地下2階建ての5階部分
- 築年月 :
- 1970年2月
- 駐車場 :
- 空き有り 49,500円~
- 設備 :
- エレベーター、エアコン、電気
- 特記事項 :
- OAフロア
機械警備にて24時間出入り可能
ビル空調指定時間の空調代は共益費に含む
リフレッシュルーム(喫煙スペース)有り(地下1階)
地下貸倉庫有
リニューアル:共用部(平成19年)・耐震補強工事完了(平成12年)
再契約相談可
駐車場敷金:100,000円
- 取り引き態様 :
- 仲介先物
- 情報更新日 :
- 2025年11月08日
- 次回更新予定日 :
- 2025年12月08日
地図を見る
ストリートビューを見る
¥518,000 / 81.92㎡
条件が近い物件
-
天神・大名多用途
35.97万円
管: 89,760円
27.23坪
赤坂駅 2分
2026年春入居可!赤坂駅2分の好立地。赤坂駅徒歩2分、天神エリアも徒歩圏内とい...
-
天神・大名多用途
22万円
管: 0円
23.65坪
天神駅 8分
岩田屋徒歩1分!大名2丁目の特等地多目的テナント。岩田屋本館から徒歩1分、旧大名...
-
天神・大名多用途
65.582万円
管: 0円
29.81坪
西鉄福岡駅 8分
国体道路沿いの新築テナントビル。約30坪のスケルトン空間。2025年6月、人気の...
-
天神・大名事務所
36.7万円
管: 33,000円
23.38坪
天神駅 6分
空港線天神駅徒歩6分!昭和通り沿いの2025年2月完成新築オフィス。2025年2...
-
天神・大名事務所
59.3813万円
管: 112,343円
29.18坪
赤坂駅 1分
赤坂駅徒歩1分!築浅ビルの最上階に構える約29坪のオフィス。地下鉄赤坂駅からわず...
-
天神・大名事務所
40.9442万円
管: 77,462円
20.12坪
赤坂駅 1分
赤坂駅徒歩1分!築浅ビルの最上階に構える約20坪のオフィス。地下鉄赤坂駅からわず...
-
天神・大名事務所
54.47万円
管: 101,444円
29.36坪
天神駅 3分
天神駅直結!雨に濡れない、明治通り沿いのオフィス。福岡のビジネスを象徴する明治通...
-
天神・大名事務所
52.16万円
管: 0円
28.74坪
赤坂駅 4分
赤坂駅4分、明治通り沿いの好立地。総大理石張りの格調高いビルに、約28坪のコンパ...