CLUB博多駅東オフィスビル 301
2026年3月末迄の短期!博多駅徒歩3分の駅近オフィス。
プロジェクト事務所や仮事務所など、特定の期間だけオフィスが必要な場合に最適。
長期契約が難しいスタートアップの初期拠点や、本社移転中の仮オフィスとしても大変便利。
無駄のない事業計画をサポートします。
福岡県福岡市博多区博多駅東1丁目10番35
- 賃料 :
- ¥261,772
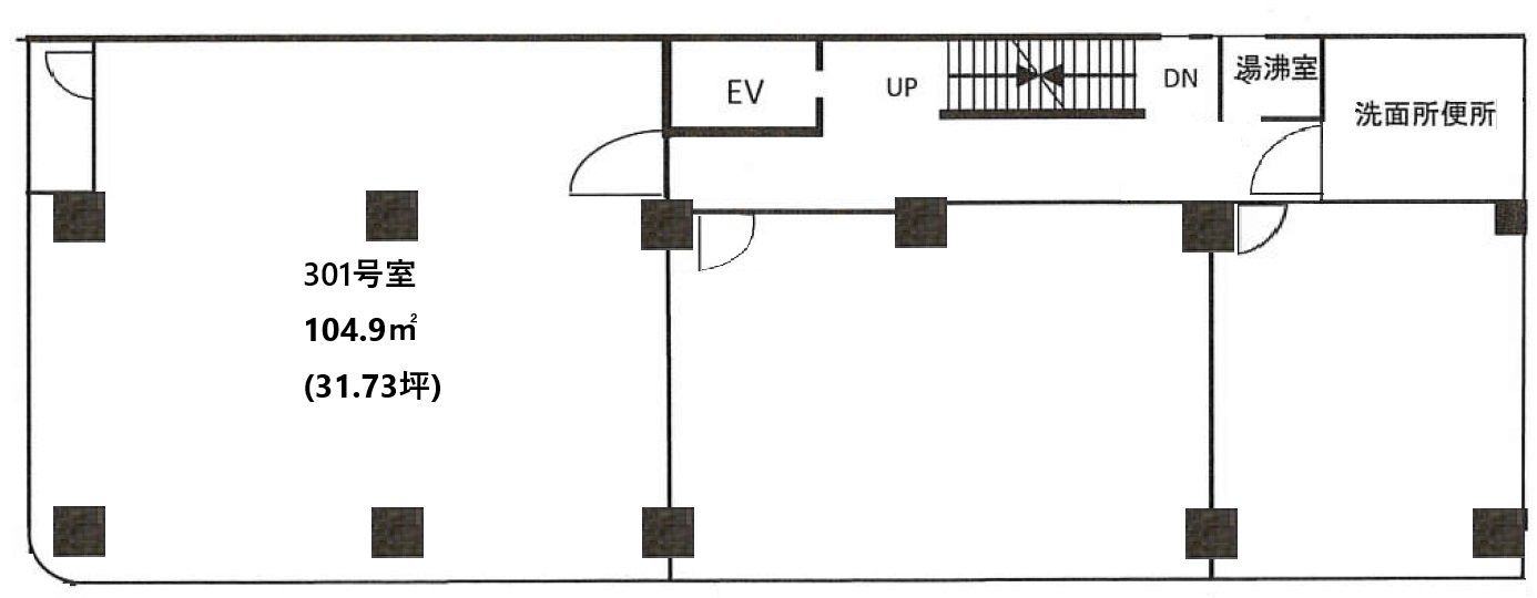
- 面積 :
- 104.9㎡/31.73坪
- 相談可能業種 :
- オフィス
物件詳細情報
- 物件名 :
- CLUB博多駅東オフィスビル 301
- 所在地 :
- 福岡県福岡市博多区博多駅東1丁目10番35
- 最寄駅 :
- JR鹿児島本線「博多駅」 徒歩3分
地下鉄空港線「祇園駅」 徒歩14分
地下鉄空港線「東比恵駅」 徒歩14分
- 相談可能業種 :
- オフィス
- 賃料 :
- ¥261,772
- 敷金 :
- 6ヶ月
- 礼金 :
- 0円
- 保証金 :
- 0円
- 精算方式 :
- 実費
- 引き渡し :
- 現況渡し
- 現況 :
- 空室
- 引き渡し時期 :
- 相談
- 賃貸借区分 :
- 定期借家
- 契約期間 :
- 1年
- 面積 :
- 104.9㎡/31.73坪
- 建物構造 :
- RC
- 階建 :
- 地上8階建ての3階部分
- 築年月 :
- 1973年9月
- バルコニー :
- 有り
- 駐車場 :
- 無し
- 設備 :
- エレベーター、エアコン、電気
- 特記事項 :
- ※定期借家契約:2026年03月31日迄
エアコンはサービス設置品となります。(4基ついていますが使用できるのは2基)
- 取り引き態様 :
- 仲介先物
- 情報更新日 :
- 2025年10月15日
- 次回更新予定日 :
- 2025年11月15日
地図を見る
ストリートビューを見る
¥261,772 / 104.9㎡
条件が近い物件
-
筑紫口事務所
39.6万円
管: 66,000円
30坪
博多駅 10分
博多駅徒歩圏内、合同庁舎そば。駐車場も完備した30坪。博多駅徒歩圏の大型複合ビル...
-
筑紫口事務所
51.766万円
管: 0円
36.22坪
博多駅 11分
博多駅徒歩圏。視認性の高いデザインオフィスビル。九州の玄関口・博多駅へ徒歩圏で新...
-
筑紫口事務所
44.3586万円
管: 141,141円
36.66坪
博多駅 10分
博多駅徒歩10分の利便性。視認性の良いオフィスビル。特徴的なラウンドフォルムが目...
-
筑紫口事務所
44.44万円
管: 0円
31.06坪
博多駅 9分
24時間利用可!博多駅エリアの大型オフィス。2025年8月末に大規模改修工事が完...
-
筑紫口事務所
51.77万円
管: 0円
36.2坪
博多駅 8分
博多駅徒歩10分/36坪ワンフロアオフィスOAフロア・光回線完備で、スタートアッ...
-
筑紫口事務所
68.9634万円
管: 0円
34.83坪
博多駅 5分
博多駅徒歩5分 / 利便性の高いオフィスビル。九州の玄関口・博多駅から徒歩5分の...