アサコ博多ビル 904
◆博多駅徒歩5分/アクセス良好◆
敷地内駐車場空車有り!給湯室や喫煙室も◎貸屋内照明器具はLED化済みです♪1Fにコンビニが入っているのでランチタイム時などに便利ですね!
福岡県福岡市博多区博多駅東1丁目11番5
- 賃料 :
- ¥320,771
- 管理費 :
- ¥96,231
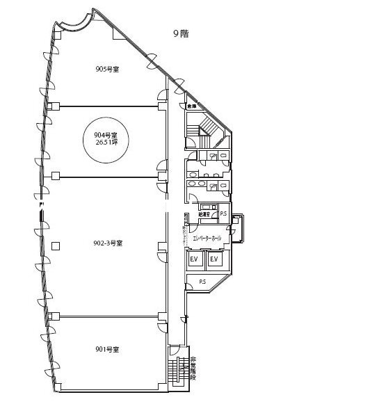
- 面積 :
- 87.64㎡/26.51坪
- 相談可能業種 :
- オフィス
物件詳細情報
- 物件名 :
- アサコ博多ビル 904
- 所在地 :
- 福岡県福岡市博多区博多駅東1丁目11番5
- 最寄駅 :
- JR鹿児島本線「博多駅」 徒歩5分
地下鉄空港線「祇園駅」 徒歩10分
地下鉄空港線「東比恵駅」 徒歩15分
- 相談可能業種 :
- オフィス
- 賃料 :
- ¥320,771
- 共益費 :
- ¥96,231
- 敷金 :
- 0ヶ月
- 礼金 :
- 0ヶ月
- 保証金 :
- ヶ月
- 精算方式 :
- 実費
- 引き渡し :
- 事務所仕上げ
- 現況 :
- 居住中
- 引き渡し時期 :
- 予定 2024年12月上旬
- 契約期間 :
- 2年
- 面積 :
- 87.64㎡/26.51坪
- 建物構造 :
- SRC
- 階建 :
- 地上11階建ての9階部分
- 築年月 :
- 1986年7月
- バルコニー :
- 無し
- 駐車場 :
- 空き有り
- 設備 :
- エレベーター、エアコン、給湯、トイレ、電気
- 特記事項 :
- 飲食店不可
- 取り引き態様 :
- 仲介先物
- 情報更新日 :
- 2025年09月27日
- 次回更新予定日 :
- 2025年10月27日
地図を見る
ストリートビューを見る
¥320,771 / 87.64㎡
条件が近い物件
-
筑紫口事務所
37.653万円
管: 0円
24.45坪
博多駅 7分
博多駅徒歩6分!長期契約で腰を据えて事業展開。
「... -
筑紫口事務所
44.66万円
管: 52,800円
23.87坪
博多駅 4分
【敷金・礼金ゼロ】+1ヶ月フリーレント!博多駅4分の新築オフィス。敷金・礼金ゼロ...
-
筑紫口事務所
25.8693万円
管: 0円
21.52坪
博多駅 5分
博多駅徒歩5分!始めやすい好条件オフィス。九州の玄関口・博多駅から徒歩5分という...
-
筑紫口事務所
26.1772万円
管: 0円
31.73坪
博多駅 3分
2026年3月末迄の短期!博多駅徒歩3分の駅近オフィス。プロジェクト事務所や仮事...
-
筑紫口多用途
44.66万円
管: 52,800円
23.87坪
博多駅 6分
敷金礼金ゼロの新築!博多駅6分、即入居可でビジネスを発進。プライバシーと独立性が...
-
筑紫口多用途
41.46万円
管: 103,653円
31.41坪
博多駅 4分
◇ヨドバシカメラ目の前の好立地オフィス◇博多駅東口そば!1階にはセブンイレブンが...
-
---万円
管: ---円
30坪
博多駅 10分
詳細は登録後にご覧いただけます
-
筑紫口事務所
32.5853万円
管: 97,755円
26.92坪
博多駅 5分
◆博多駅徒歩5分/オフィスビル最上階◆ アクセス良好◎敷地内駐車場空車有り!給湯...