今泉2丁目店舗 1F-C
人気の今泉2丁目!新築テナントビル1階路面店。
天神・薬院が徒歩圏内で、周辺は感度の高いショップが並ぶエリアです。
約15.24坪の使い勝手の良いサイズ感は、物販・美容・飲食など幅広い業態のニーズに応える戦略的な拠点となります。
福岡県福岡市中央区今泉2丁目3番
- 賃料 :
- ¥320,001
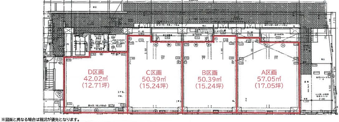
- 面積 :
- 50.39㎡/15.24坪
- 相談可能業種 :
- 重飲食、軽飲食、飲食全般、美容、医療・クリニック、小売り・物販、サービス
物件詳細情報
- 物件名 :
- 今泉2丁目店舗 1F-C
- 所在地 :
- 福岡県福岡市中央区今泉2丁目3番
- 最寄駅 :
- 地下鉄七隈線「薬院大通駅」 徒歩6分
西鉄天神大牟田線「薬院駅」 徒歩6分
西鉄天神大牟田線「西鉄福岡駅」 徒歩10分
- 相談可能業種 :
- 重飲食軽飲食飲食全般美容医療・クリニック小売り・物販サービス
- 賃料 :
- ¥320,001
- 敷金 :
- 6ヶ月
- 礼金 :
- 1ヶ月
- 保証金 :
- 0円
- 精算方式 :
- 実費
- 引き渡し :
- 現況渡し
- 現況 :
- 未完成
- 引き渡し時期 :
- 相談
- 賃貸借区分 :
- 定期借家
- 契約期間 :
- 5年
- 面積 :
- 50.39㎡/15.24坪
- 建物構造 :
- RC
- 階建 :
- 地上13階建ての1階部分
- 築年月 :
- 2027年1月
- 駐車場 :
- 無し
- 設備 :
- エレベーター、給湯、電気、水道
- 特記事項 :
- 飲食店相談可
重飲食相談可
業種ご相談ください。
火災保険加入必須
保証会社:全保連(口座振替利用必須)
初回保証料:家賃総額の100%
連帯保証人:必要(法人の場合は代表取締役の方)
継続保証委託料:月額賃料の10%/年
光熱費:実費
- 取り引き態様 :
- 仲介先物
- 情報更新日 :
- 2026年02月28日
- 次回更新予定日 :
- 2026年03月28日
地図を見る
¥320,001 / 50.39㎡
条件が近い物件
-
今泉・渡辺通り多用途
29.7万円
管: 0円
11.54坪
西鉄福岡駅 5分
天神南駅徒歩3分!利便性と質を求めるクリエイティブ拠点に。天神の中心、国体道路に...
-
今泉・渡辺通り店舗
24.9997万円
管: 0円
12.71坪
薬院大通駅 6分
人気の今泉2丁目!新築テナントビル1階路面店。天神・薬院が徒歩圏内で、周辺は感度...
-
今泉・渡辺通り店舗
33.9999万円
管: 0円
15.24坪
薬院大通駅 6分
人気の今泉2丁目!新築テナントビル1階路面店。天神・薬院が徒歩圏内で、周辺は感度...
-
今泉・渡辺通り多用途
21.384万円
管: 0円
12.96坪
西鉄福岡駅 11分
天神・薬院徒歩圏!今泉1丁目の隠れ家的13坪店舗事務所。西鉄薬院駅から徒歩8分、...
-
今泉・渡辺通り多用途
28.5472万円
管: 0円
16.22坪
渡辺通駅 4分
渡辺通・薬院エリア!2027年完成予定の新築テナントビル。天神と薬院の中間に位置...
-
今泉・渡辺通り多用途
18.7088万円
管: 0円
10.63坪
渡辺通駅 4分
渡辺通・薬院エリア!2027年完成予定の新築テナントビル。天神と薬院の中間に位置...
-
今泉・渡辺通り多用途
18.7088万円
管: 0円
10.63坪
渡辺通駅 4分
渡辺通・薬院エリア!2027年完成予定の新築テナントビル。天神と薬院の中間に位置...
-
今泉・渡辺通り多用途
27.72万円
管: 0円
10.50坪
渡辺通駅 4分
渡辺通・薬院エリア!2027年完成予定の新築テナントビル。天神と薬院の中間に位置...