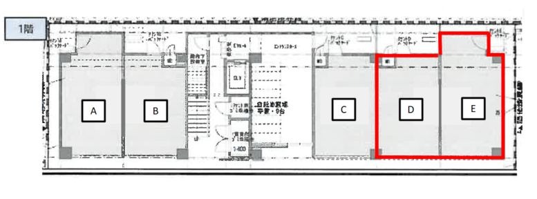
渡辺通4丁目店舗 1F-D.E
渡辺通・薬院エリア!2027年完成予定の新築テナントビル。
天神と薬院の中間に位置し両エリアからの集客が見込める好立地です。
希少な重飲食の相談も可能で焼肉店やラーメン店などの業態も検討いただけます。
完成まで時間があるためじっくりと内装設計や事業計画を練ることができ、万全の状態で開業を迎えられます。
福岡県福岡市中央区渡辺通4丁目1番12
- 賃料 :
- ¥508,464
- 面積 :
- 63.7㎡/19.27坪
- 相談可能業種 :
- 重飲食、軽飲食、飲食全般、美容、医療・クリニック、小売り・物販、サービス、オフィス
物件詳細情報
- 物件名 :
- 渡辺通4丁目店舗 1F-D.E
- 所在地 :
- 福岡県福岡市中央区渡辺通4丁目1番12
- 最寄駅 :
- 地下鉄七隈線「渡辺通駅」 徒歩4分
西鉄天神大牟田線「薬院駅」 徒歩5分
西鉄天神大牟田線「西鉄福岡駅」 徒歩7分
- 相談可能業種 :
- 重飲食軽飲食飲食全般美容医療・クリニック小売り・物販サービスオフィス
- 賃料 :
- ¥508,464
- 敷金 :
- 6ヶ月
- 礼金 :
- 1ヶ月
- 保証金 :
- 0円
- 精算方式 :
- 実費
- 引き渡し :
- 現況渡し
- 現況 :
- 未完成
- 引き渡し時期 :
- 相談
- 賃貸借区分 :
- 定期借家
- 契約期間 :
- 5年
- 面積 :
- 63.7㎡/19.27坪
- 建物構造 :
- RC
- 階建 :
- 地上5階建ての1階部分
- 築年月 :
- 2027年1月
- 駐車場 :
- 無し
- 設備 :
- 給湯、電気、水道
- 特記事項 :
- 飲食店相談
重飲食相談可
業種ご相談ください。
保証会社:全保連(口座振替利用必須)
初回保証料:家賃総額の100%
連帯保証人必要(法人の場合、代表取締役)
継続保証委託料:月額賃料の10%(年)
火災保険加入必須
光熱費:実費
- 取り引き態様 :
- 仲介先物
- 情報更新日 :
- 2026年02月28日
- 次回更新予定日 :
- 2026年03月28日
地図を見る
ストリートビューを見る
¥508,464 / 63.7㎡
条件が近い物件
-
今泉・渡辺通り事務所
16.5万円
管: 0円
17.12坪
薬院駅 4分
薬院駅徒歩4分!広々17坪・2LDK仕様の機能的オフィス。周辺には飲食店やコンビ...
-
今泉・渡辺通り事務所
10.45万円
管: 5,500円
17.15坪
天神南駅 5分
天神南駅徒歩5分!少数精鋭向け天神拠点オフィス。渡辺通5丁目の利便性を享受できる...
-
今泉・渡辺通り事務所
10.45万円
管: 5,500円
17.15坪
天神南駅 5分
天神南駅徒歩5分!少数精鋭向け天神拠点オフィス。渡辺通5丁目の利便性を享受できる...
-
今泉・渡辺通り事務所
10.45万円
管: 5,500円
17.15坪
天神南駅 5分
3路線利用可能な好立地!角部屋の明るい17坪オフィス。天神南駅から徒歩5分、渡辺...
-
今泉・渡辺通り事務所
10.56万円
管: 0円
15.13坪
薬院駅 3分
薬院駅徒歩3分!バルコニー付の明るい3階拠点。渡辺通・薬院エリアのビジネスチャン...
-
今泉・渡辺通り事務所
35.2万円
管: 24,200円
18.66坪
西鉄福岡駅 5分
天神駅徒歩5分!新築ハイグレードオフィス。天神・今泉エリアで天神駅・薬院駅徒歩圏...
-
今泉・渡辺通り多用途
46.3012万円
管: 81,708円
24.76坪
天神南駅 3分
天神南駅3分!3駅利用可の好アクセス。共用部リニューアル済の美築オフィス。地下鉄...
-
今泉・渡辺通り店舗
32.0001万円
管: 0円
15.24坪
薬院大通駅 6分
人気の今泉2丁目!新築テナントビル1階路面店。天神・薬院が徒歩圏内で、周辺は感度...