赤坂セントラルビル 9F
物件詳細情報
- 物件名 :
- 赤坂セントラルビル 9F
- 所在地 :
- 福岡県福岡市中央区大名2丁目12番12
- 最寄駅 :
- 地下鉄空港線「赤坂駅」 徒歩1分
地下鉄空港線「天神駅」 徒歩11分
西鉄天神大牟田線「西鉄福岡駅」 徒歩13分
- 相談可能業種 :
- オフィス
- 賃料 :
- ¥431,013
- 共益費 :
- ¥81,543
- 敷金 :
- 12ヶ月
- 礼金 :
- 0円
- 保証金 :
- 0円
- 引き渡し :
- 現況渡し
- 現況 :
- 空室
- 引き渡し時期 :
- 即時
- 契約期間 :
- 2年
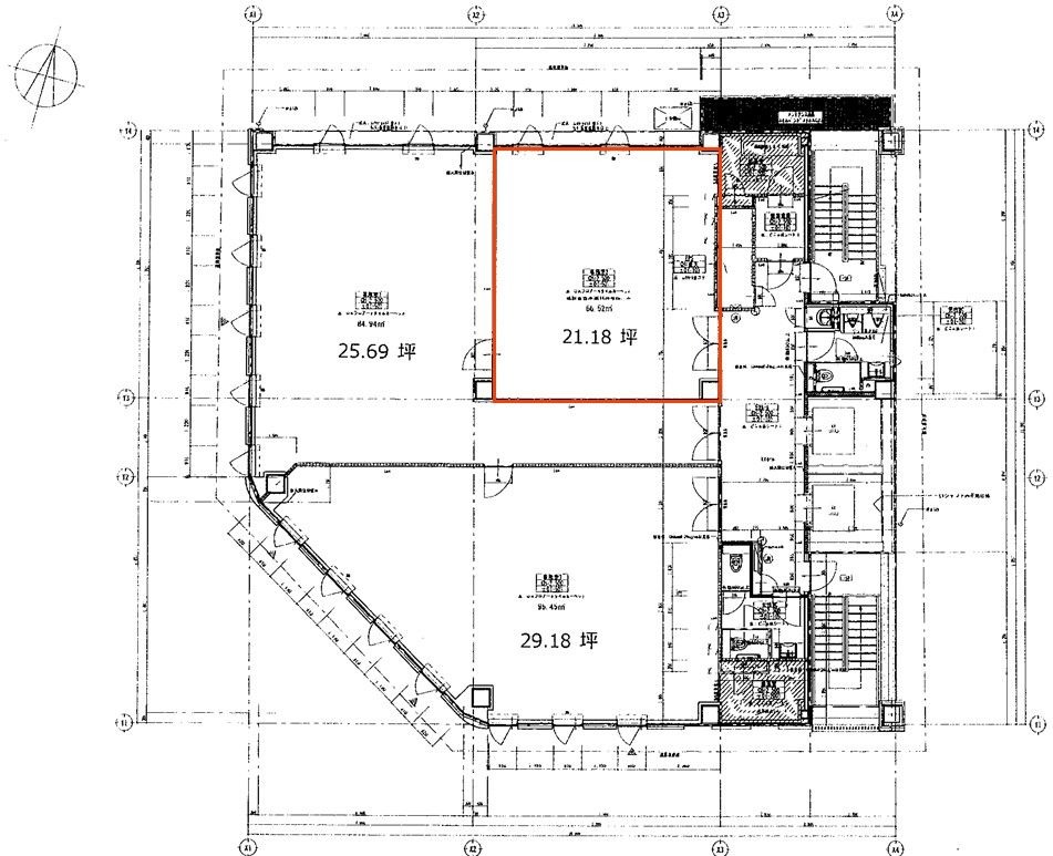
- 面積 :
- 70.02㎡/21.18坪
- 建物構造 :
- 鉄骨造
- 階建 :
- 地上9階建ての9階部分
- 築年月 :
- 2024年1月
- 駐車場 :
- 空き有り 25,000円~
- 設備 :
- エレベーター、エアコン、電気
- 特記事項 :
- 24時間換気センサー付き自動空調システム
タッチレスエレベーター
Low-E複層ガラス
駐車場は契約時に敷金2か月分が必要となります。
- 取り引き態様 :
- 仲介先物
- 情報更新日 :
- 2025年11月05日
- 次回更新予定日 :
- 2025年12月05日
地図を見る
ストリートビューを見る
¥431,013 / 70.02㎡
条件が近い物件
-
天神・大名多用途
22万円
管: 0円
23.65坪
天神駅 8分
岩田屋徒歩1分!大名2丁目の特等地多目的テナント。岩田屋本館から徒歩1分、旧大名...
-
天神・大名事務所
36.7万円
管: 33,000円
23.38坪
天神駅 6分
空港線天神駅徒歩6分!昭和通り沿いの2025年2月完成新築オフィス。2025年2...
-
天神・大名事務所
21.7774万円
管: 71,306円
17.52坪
天神駅 4分
地下鉄天神駅直結!即入居可能な短期オフィス。天神の中心、駅直結という最高の住所を...
-
天神・大名事務所
51.8万円
管: 0円
24.78坪
天神駅 5分
明治通り沿い天神駅徒歩5分。企業の信頼を築く一等地オフィスビル。アクロス福岡に隣...
-
天神・大名事務所
40.9442万円
管: 77,462円
20.12坪
赤坂駅 1分
赤坂駅徒歩1分!築浅ビルの最上階に構える約20坪のオフィス。地下鉄赤坂駅からわず...
-
天神・大名多用途
36.696万円
管: 33,000円
23.38坪
赤坂駅 4分
天神駅徒歩3分。天神ビッグバンの中核エリア。事務所仕様の内装(カセットエアコン2...
-
天神・大名多用途
46.695万円
管: 33,000円
23.38坪
天神駅 3分
天神駅徒歩3分。天神ビッグバンの中核エリア。人通りの絶えない昭和通りに面した、ガ...
-
賃料相談
管: ---円
22.51坪
西鉄福岡駅 4分
詳細は登録後にご覧いただけます